Building Summary

Data last updated on: 4/3/2026     Ownership current as of: 3/30/2026     Tax Year: 2026
REID 110614

PIN # 0831-28-5028

Location Address Property Description
705 MALLARD AVE PROP-PARK LANE PARTNERS L LC PL:000000-000000
   
Property Owner Owner's Mailing Address
HAVENS, MARTHA MCCAUSLAND;HOSTERMAN, DANIEL
705 MALLARD AVE
DURHAM NC 27701
Parcel
Buildings
Misc Improvements
Land
Deeds
Notes
Sales
Photos
Map
Building Location Address
705 MALLARD AVE
Building Description
RESFR-RES-FRM-OR-EQ
Card   of  1
Bldg Type RESIDENTIAL
Units 1
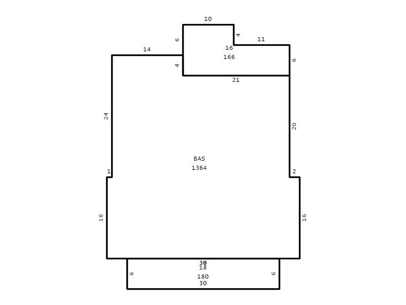
Living Area (SQFT) 1364
Number of Stories 1.00
Style RAN-RANCH
Foundation 04-P-FOOTING/CRWL-SP
Exterior 01-WOOD-PANEL
Const Type
Heating 05-PACKAGE-HEAT/COOL
Air Cond
Plumbing Baths (Full):   2
Baths (Half):   0
Extra Fixtures:   0
Total Plumbing Fixtures:   6 
Bedrooms 2
Main Body (SQFT) 1364
Year Built 1924
Additions 2
Effective Year 1924
Remodeled 0
Interior Adj.
Other Features
Building Total & Improvement Details

Grade B+10 130%
Percentage Complete 100
Total Adjusted Replacement Cost New $328,674
Physical Depreciation (% Bad) 0%
Depreciated Value $213,638
Economic Depreciation (% Bad) 0%
Functional Depreciation (% Bad) 0%
Total Depreciated Value $213,638
Market Area Factor 1.00
Building Value $213,638
Misc Improvements Value $204
Total Improvement Value $213,842

Assessed Land Value $220,500
   
Assessed Total Value $434,342



Addition Summary 
StoryTypeCodeArea
1.00 Frame Deck 16 166
1.00 Covered Porch 18 180
 
Other Improvements 
UnitsDescriptionItemCodeYear% BadValue
10x12 DIMENSIONS Shed (Open Pole) 1925 75 204
 


Building Sketch
Photograph
Building Sketch Building Photo
(Click sketch for bigger image)




Copyright © 2022 Durham County, North Carolina.