Building Summary

Data last updated on: 4/3/2026     Ownership current as of: 3/30/2026     Tax Year: 2026
REID 110637

PIN # 0831-28-7421

Location Address Property Description
613 CANAL ST PROP-LOWE LOTTIE HEIRS/LT #07 PL:000000-000000
   
Property Owner Owner's Mailing Address
CF DUKE RENTALS NO2 LLC
2805 S INGRAM MILL RD
SPRINGFIELD MO 65804
Parcel
Buildings
Misc Improvements
Land
Deeds
Notes
Sales
Photos
Map
Building Location Address
613 CANAL ST
Building Description
RESFR-RES-FRM-OR-EQ
Card   of  1
Bldg Type RESIDENTIAL
Units 1
Living Area (SQFT) 1792
Number of Stories 2.00
Style COL-COLONIAL
Foundation 04-P-FOOTING/CRWL-SP
Exterior 09-HARD-B/CEMENTBRD
Const Type
Heating 05-PACKAGE-HEAT/COOL
Air Cond
Plumbing Baths (Full):   3
Baths (Half):   0
Extra Fixtures:   0
Total Plumbing Fixtures:   9 
Bedrooms 4
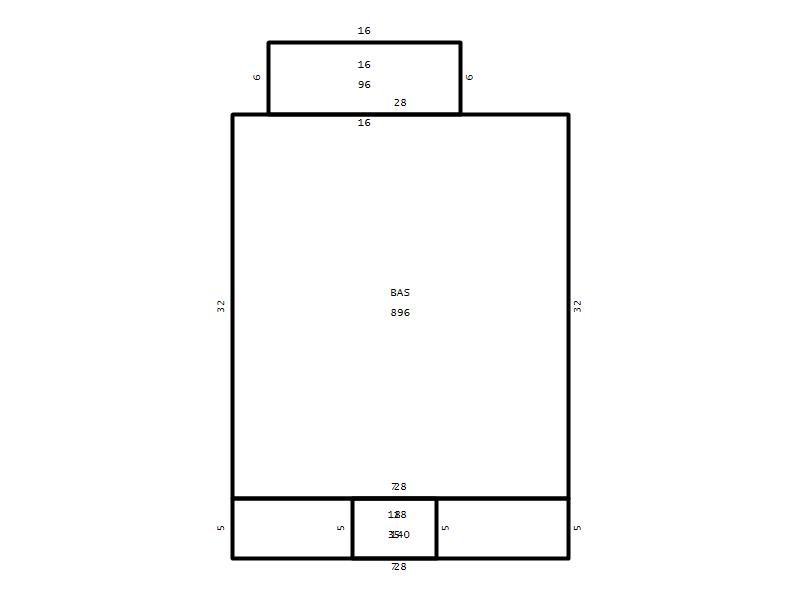
Main Body (SQFT) 896
Year Built 2016
Additions 4
Effective Year 2016
Remodeled 0
Interior Adj.
Other Features
Building Total & Improvement Details

Grade B+10 130%
Percentage Complete 100
Total Adjusted Replacement Cost New $397,732
Physical Depreciation (% Bad) 0%
Depreciated Value $381,823
Economic Depreciation (% Bad) 0%
Functional Depreciation (% Bad) 0%
Total Depreciated Value $381,823
Market Area Factor 1.00
Building Value $381,823
Misc Improvements Value
Total Improvement Value $381,823

Assessed Land Value $199,500
   
Assessed Total Value $581,323



Addition Summary 
StoryTypeCodeArea
1.00 Frame Deck 16 96
1.00 Covered Porch 18 140
1.00 Covered Porch 18 35
1.00 Res Frame 2Nd Flr FR02 896
 
Other Improvements 
 


Building Sketch
Photograph
Building Sketch Building Photo
(Click sketch for bigger image)




Copyright © 2022 Durham County, North Carolina.