Building Summary

Data last updated on: 4/3/2026     Ownership current as of: 3/30/2026     Tax Year: 2026
REID 110650

PIN # 0831-28-2434

Location Address Property Description
507 CANAL ST PROP-COOKE ROBERT CAMERON /LT#04 PL:000110-000160
   
Property Owner Owner's Mailing Address
JORGE, OSCAR ROMERO;TUCKER, ELIZABETH CARLISLE
507 CANAL ST
DURHAM NC 27701
Parcel
Buildings
Misc Improvements
Land
Deeds
Notes
Sales
Photos
Map
Building Location Address
507 CANAL ST
Building Description
RESFR-RES-FRM-OR-EQ
Card   of  1
Bldg Type RESIDENTIAL
Units 1
Living Area (SQFT) 1536
Number of Stories 2.00
Style CAP-CAPE-COD
Foundation 04-P-FOOTING/CRWL-SP
Exterior 09-HARD-B/CEMENTBRD
Const Type
Heating 05-PACKAGE-HEAT/COOL
Air Cond
Plumbing Baths (Full):   2
Baths (Half):   1
Extra Fixtures:   0
Total Plumbing Fixtures:   8 
Bedrooms 3
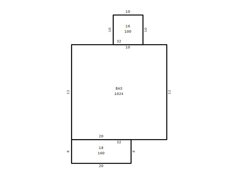
Main Body (SQFT) 1024
Year Built 2016
Additions 3
Effective Year 2016
Remodeled 0
Interior Adj.
Other Features
Building Total & Improvement Details

Grade B 120%
Percentage Complete 100
Total Adjusted Replacement Cost New $332,569
Physical Depreciation (% Bad) 0%
Depreciated Value $319,266
Economic Depreciation (% Bad) 0%
Functional Depreciation (% Bad) 0%
Total Depreciated Value $319,266
Market Area Factor 1.00
Building Value $319,266
Misc Improvements Value $1,235
Total Improvement Value $320,501

Assessed Land Value $203,000
   
Assessed Total Value $523,501



Addition Summary 
StoryTypeCodeArea
1.00 Frame Deck 16 100
1.00 Covered Porch 18 160
1.00 Res Frame 2Nd Flr FR02 512
 
Other Improvements 
UnitsDescriptionItemCodeYear% BadValue
10x10 DIMENSIONS Patio 2016 15 1235
 


Building Sketch
Photograph
Building Sketch Building Photo
(Click sketch for bigger image)




Copyright © 2022 Durham County, North Carolina.