Building Summary

Data last updated on: 4/2/2026     Ownership current as of: 3/30/2026     Tax Year: 2026
REID 206219

PIN # 0851-41-9275

Location Address Property Description
303 SYLVIAS CT GROVE POINTE/LT#11 PL:000173-000219
   
Property Owner Owner's Mailing Address
KAVANAGH, SEAN K;KAVANAGH, CHRISTINA D
601 CROSSING DR
DURHAM NC 27703
Parcel
Buildings
Misc Improvements
Land
Deeds
Notes
Sales
Photos
Map
Building Location Address
303 SYLVIAS CT
Building Description
RESFR-RES-FRM-OR-EQ
Card   of  1
Bldg Type RESIDENTIAL
Units 1
Living Area (SQFT) 1744
Number of Stories 2.00
Style CON-CONVENTIONAL
Foundation 03-CONTINOUS-SLAB
Exterior 09-HARD-B/CEMENTBRD
Const Type
Heating 05-PACKAGE-HEAT/COOL
Air Cond
Plumbing Baths (Full):   2
Baths (Half):   1
Extra Fixtures:   0
Total Plumbing Fixtures:   8 
Bedrooms 3
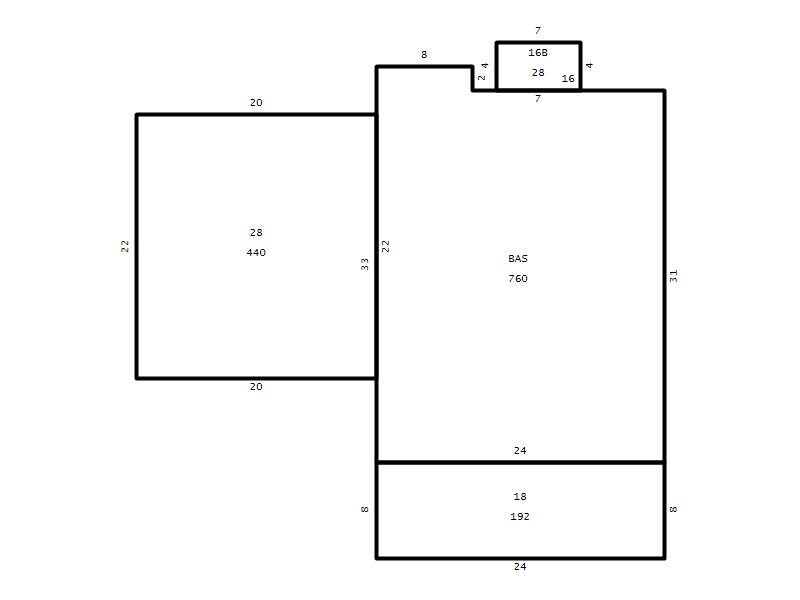
Main Body (SQFT) 760
Year Built 2007
Additions 5
Effective Year 2007
Remodeled 0
Interior Adj.
Other Features
Building Total & Improvement Details

Grade B+5 125%
Percentage Complete 100
Total Adjusted Replacement Cost New $396,155
Physical Depreciation (% Bad) 0%
Depreciated Value $324,847
Economic Depreciation (% Bad) 0%
Functional Depreciation (% Bad) 0%
Total Depreciated Value $324,847
Market Area Factor 1.00
Building Value $324,847
Misc Improvements Value
Total Improvement Value $324,847

Assessed Land Value $74,584
   
Assessed Total Value $399,431



Addition Summary 
StoryTypeCodeArea
1.00 Concrete Slab 16B 28
1.00 Covered Porch 18 192
1.00 Garage 28 440
1.00 Res Frame 2Nd Flr FR02 764
1.00 Res Frm 2Nd Flr Over Garg FR02 220
 
Other Improvements 
 


Building Sketch
Photograph
Building Sketch Building Photo
(Click sketch for bigger image)




Copyright © 2022 Durham County, North Carolina.