Building Summary

Data last updated on: 4/3/2026     Ownership current as of: 3/30/2026     Tax Year: 2026
REID 110687

PIN # 0831-27-0514

Location Address Property Description
604 PRIMITIVE ST PROP-CARLTON F M/LT#04 CLEVELAND-HOLLOWAY/HD PL:000004-000075
   
Property Owner Owner's Mailing Address
MOND, BRANDON P;GRANT, ANNA
604 PRIMITIVE ST
DURHAM NC 27701

Value subject to change, property assessment under review

Parcel
Buildings
Misc Improvements
Land
Deeds
Notes
Sales
Photos
Map
Building Location Address
604 PRIMITIVE ST
Building Description
RESFR-RES-FRM-OR-EQ
Card   of  1
Bldg Type RESIDENTIAL
Units 1
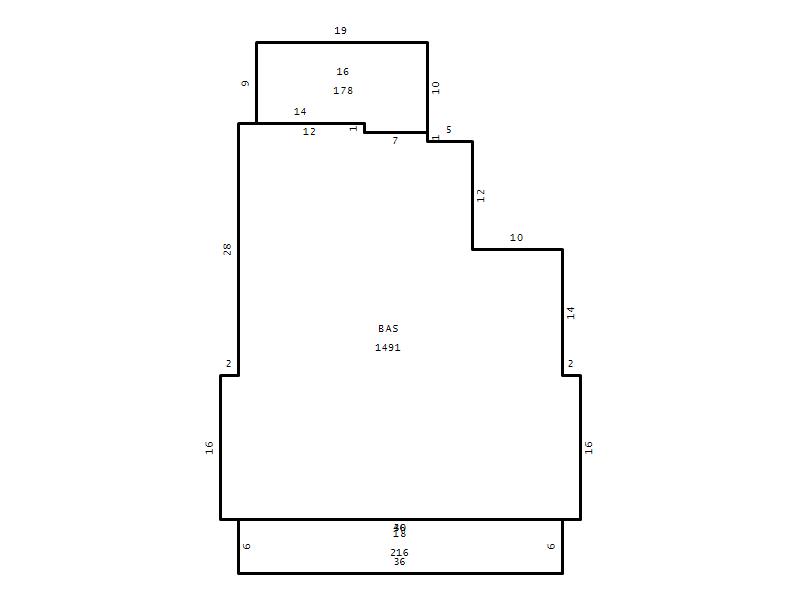
Living Area (SQFT) 1491
Number of Stories 1.00
Style RAN-RANCH
Foundation 04-P-FOOTING/CRWL-SP
Exterior 01-WOOD-PANEL
Const Type
Heating 05-PACKAGE-HEAT/COOL
Air Cond
Plumbing Baths (Full):   2
Baths (Half):   0
Extra Fixtures:   0
Total Plumbing Fixtures:   6 
Bedrooms 3
Main Body (SQFT) 1491
Year Built 1910
Additions 2
Effective Year 1910
Remodeled 0
Interior Adj.
Other Features
Building Total & Improvement Details

Grade B+10 130%
Percentage Complete 100
Total Adjusted Replacement Cost New
Physical Depreciation (% Bad) 0%
Depreciated Value
Economic Depreciation (% Bad) 0%
Functional Depreciation (% Bad) 0%
Total Depreciated Value
Market Area Factor 1.00
Building Value
Misc Improvements Value
Total Improvement Value

Assessed Land Value
   
Assessed Total Value



Addition Summary 
StoryTypeCodeArea
1.00 Frame Deck 16 178
1.00 Covered Porch 18 216
 
Other Improvements 
UnitsDescriptionItemCodeYear% BadValue
11x14 DIMENSIONS Patio 1990 55
9x10 DIMENSIONS Shed (Open Pole) 1990 75
 


Building Sketch
Photograph
Building Sketch Building Photo
(Click sketch for bigger image)




Copyright © 2022 Durham County, North Carolina.