Building Summary

Data last updated on: 4/2/2026     Ownership current as of: 3/30/2026     Tax Year: 2026
REID 206436

PIN # 0747-31-0878

Location Address Property Description
711 24 KEYSTONE PARK DR KEYSTN XING/PH:01A-01B/TW /LT#195/UT#024 MODEL-CED PL:000174-000040
   
Property Owner Owner's Mailing Address
KEYSTONE HOME RENTALS LLC
106 BENWELL CT
CARY NC 27519
Parcel
Buildings
Misc Improvements
Land
Deeds
Notes
Sales
Photos
Map
Building Location Address
711 KEYSTONE PARK DR
Building Description
TENFR-TWNHS-E-UN-FR
Card   of  1
Bldg Type RESIDENTIAL
Units 1
Living Area (SQFT) 1160
Number of Stories 2.00
Style TWN-TWNHS/ATTC-RW-TP
Foundation 03-CONTINOUS-SLAB
Exterior 08-VINYL/ALUMINUM
Const Type
Heating 05-PACKAGE-HEAT/COOL
Air Cond
Plumbing Baths (Full):   2
Baths (Half):   1
Extra Fixtures:   0
Total Plumbing Fixtures:   8 
Bedrooms 2
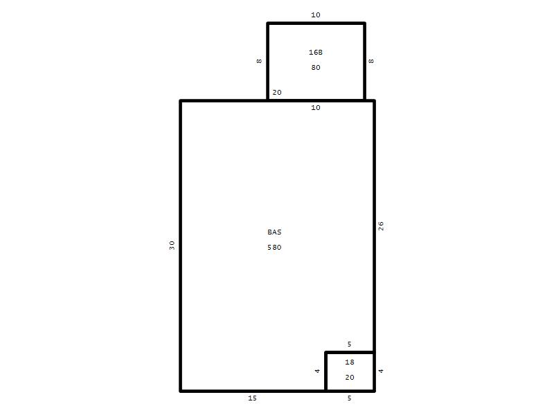
Main Body (SQFT) 580
Year Built 2007
Additions 3
Effective Year 2007
Remodeled 0
Interior Adj.
Other Features
Building Total & Improvement Details

Grade B-5 115%
Percentage Complete 100
Total Adjusted Replacement Cost New $254,197
Physical Depreciation (% Bad) 0%
Depreciated Value $221,151
Economic Depreciation (% Bad) 0%
Functional Depreciation (% Bad) 0%
Total Depreciated Value $221,151
Market Area Factor 1.00
Building Value $221,151
Misc Improvements Value
Total Improvement Value $221,151

Assessed Land Value $80,000
   
Assessed Total Value $301,151



Addition Summary 
StoryTypeCodeArea
1.00 Concrete Slab 16B 80
1.00 Covered Porch 18 20
1.00 Res Frame 2Nd Flr FR02 580
 
Other Improvements 
 


Building Sketch
Photograph
Building Sketch Building Photo
(Click sketch for bigger image)




Copyright © 2022 Durham County, North Carolina.