Building Summary

Data last updated on: 4/2/2026     Ownership current as of: 3/30/2026     Tax Year: 2026
REID 206448

PIN # 0852-28-7365

Location Address Property Description
109 CHAMFER PL CARPENTER POINTE/PH:03/LT #52 PL:000174-000064
   
Property Owner Owner's Mailing Address
STEINMETZ, WILLIAM DAVID;STEINMETZ, JAMES BRANDON
109 CHAMFER PL
DURHAM NC 27704
Parcel
Buildings
Misc Improvements
Land
Deeds
Notes
Sales
Photos
Map
Building Location Address
109 CHAMFER PL
Building Description
RESFR-RES-FRM-OR-EQ
Card   of  1
Bldg Type RESIDENTIAL
Units 1
Living Area (SQFT) 3025
Number of Stories 2.00
Style CON-CONVENTIONAL
Foundation 03-CONTINOUS-SLAB
Exterior 08-VINYL/ALUMINUM
Const Type
Heating 05-PACKAGE-HEAT/COOL
Air Cond
Plumbing Baths (Full):   2
Baths (Half):   1
Extra Fixtures:   0
Total Plumbing Fixtures:   8 
Bedrooms 4
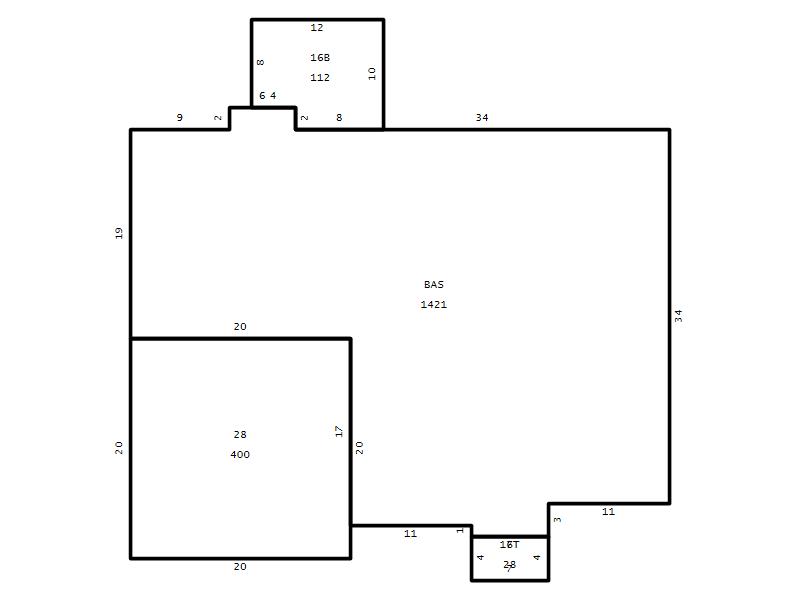
Main Body (SQFT) 1421
Year Built 2007
Additions 5
Effective Year 2007
Remodeled 0
Interior Adj.
Other Features
Building Total & Improvement Details

Grade C+15 115%
Percentage Complete 100
Total Adjusted Replacement Cost New $490,108
Physical Depreciation (% Bad) 0%
Depreciated Value $401,889
Economic Depreciation (% Bad) 0%
Functional Depreciation (% Bad) 0%
Total Depreciated Value $401,889
Market Area Factor 1.00
Building Value $401,889
Misc Improvements Value
Total Improvement Value $401,889

Assessed Land Value $76,875
   
Assessed Total Value $478,764



Addition Summary 
StoryTypeCodeArea
1.00 Concrete Slab 16B 112
1.00 Terrace/Raised Patio 16T 28
1.00 Garage 28 400
1.00 Res Frm 2Nd Flr Over Garg FR02 300
1.00 Res Frame 2Nd Flr FR02 1304
 
Other Improvements 
 


Building Sketch
Photograph
Building Sketch Building Photo
(Click sketch for bigger image)




Copyright © 2022 Durham County, North Carolina.