Building Summary

Data last updated on: 4/2/2026     Ownership current as of: 3/30/2026     Tax Year: 2026
REID 206500

PIN # 0852-28-9616

Location Address Property Description
110 JIGSAW DR CARPENTER POINTE/PH:03/LT #44 PL:000174-000067
   
Property Owner Owner's Mailing Address
WHARTON, RYLEY;WHARTON, RACHEL
110 JIGSAW DR
DURHAM NC 27704
Parcel
Buildings
Misc Improvements
Land
Deeds
Notes
Sales
Photos
Map
Building Location Address
110 JIGSAW DR
Building Description
RESFR-RES-FRM-OR-EQ
Card   of  1
Bldg Type RESIDENTIAL
Units 1
Living Area (SQFT) 3013
Number of Stories 2.00
Style CON-CONVENTIONAL
Foundation 03-CONTINOUS-SLAB
Exterior 08-VINYL/ALUMINUM
Const Type
Heating 05-PACKAGE-HEAT/COOL
Air Cond
Plumbing Baths (Full):   2
Baths (Half):   1
Extra Fixtures:   0
Total Plumbing Fixtures:   8 
Bedrooms 5
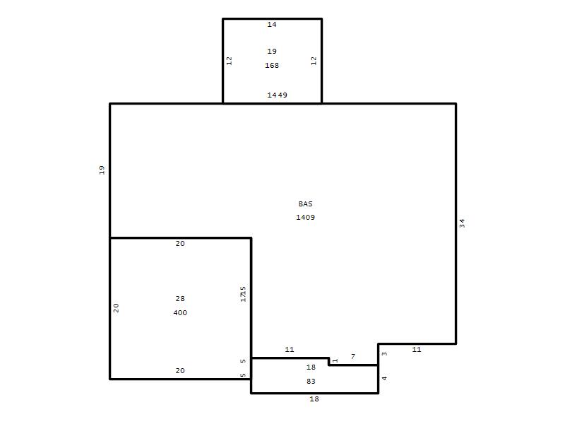
Main Body (SQFT) 1409
Year Built 2008
Additions 5
Effective Year 2008
Remodeled 0
Interior Adj.
Other Features
Building Total & Improvement Details

Grade C+15 115%
Percentage Complete 100
Total Adjusted Replacement Cost New $501,227
Physical Depreciation (% Bad) 0%
Depreciated Value $466,141
Economic Depreciation (% Bad) 0%
Functional Depreciation (% Bad) 0%
Total Depreciated Value $466,141
Market Area Factor 1.00
Building Value $466,141
Misc Improvements Value
Total Improvement Value $466,141

Assessed Land Value $83,125
   
Assessed Total Value $549,266



Addition Summary 
StoryTypeCodeArea
1.00 Covered Porch 18 83
1.00 Screen Porch 19 168
1.00 Garage 28 400
1.00 Res Frame 2Nd Flr FR02 1304
1.00 Res Frm 2Nd Flr Over Garg FR02 300
 
Other Improvements 
 


Building Sketch
Photograph
Building Sketch Building Photo
(Click sketch for bigger image)




Copyright © 2022 Durham County, North Carolina.