Building Summary

Data last updated on: 4/2/2026     Ownership current as of: 3/30/2026     Tax Year: 2026
REID 206506

PIN # 0852-29-1412

Location Address Property Description
216 TRUSS WAY CARPENTER POINTE/PH:03/LT #20 PL:000174-000070
   
Property Owner Owner's Mailing Address
BORDER, LLOYD DALTON;BORDER, SARAH ELIZABETH
216 TRUSS WAY
DURHAM NC 27704
Parcel
Buildings
Misc Improvements
Land
Deeds
Notes
Sales
Photos
Map
Building Location Address
216 TRUSS WAY
Building Description
RESFR-RES-FRM-OR-EQ
Card   of  1
Bldg Type RESIDENTIAL
Units 1
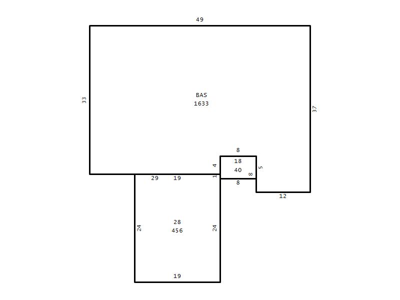
Living Area (SQFT) 1633
Number of Stories 1.00
Style CON-CONVENTIONAL
Foundation 03-CONTINOUS-SLAB
Exterior 08-VINYL/ALUMINUM
Const Type
Heating 05-PACKAGE-HEAT/COOL
Air Cond
Plumbing Baths (Full):   2
Baths (Half):   0
Extra Fixtures:   0
Total Plumbing Fixtures:   6 
Bedrooms 3
Main Body (SQFT) 1633
Year Built 2013
Additions 2
Effective Year 2013
Remodeled 0
Interior Adj.
Other Features
Building Total & Improvement Details

Grade C+15 115%
Percentage Complete 100
Total Adjusted Replacement Cost New $337,571
Physical Depreciation (% Bad) 0%
Depreciated Value $297,062
Economic Depreciation (% Bad) 0%
Functional Depreciation (% Bad) 0%
Total Depreciated Value $297,062
Market Area Factor 1.00
Building Value $297,062
Misc Improvements Value
Total Improvement Value $297,062

Assessed Land Value $87,500
   
Assessed Total Value $384,562



Addition Summary 
StoryTypeCodeArea
1.00 Covered Porch 18 40
1.00 Garage 28 456
 
Other Improvements 
 


Building Sketch
Photograph
Building Sketch Building Photo
(Click sketch for bigger image)




Copyright © 2022 Durham County, North Carolina.