Building Summary

Data last updated on: 4/2/2026     Ownership current as of: 3/30/2026     Tax Year: 2026
REID 207673

PIN # 0860-28-5002

Location Address Property Description
620 CONOVER RD RAVENSTONE/PH:02/SEC:04/L T#200 PL:000176-000256
   
Property Owner Owner's Mailing Address
ESCUDERO, BENJAMIN ANDRES LABRA
620 CONOVER RD
DURHAM NC 27703
Parcel
Buildings
Misc Improvements
Land
Deeds
Notes
Sales
Photos
Map
Building Location Address
620 CONOVER RD
Building Description
RESFR-RES-FRM-OR-EQ
Card   of  1
Bldg Type RESIDENTIAL
Units 1
Living Area (SQFT) 1968
Number of Stories 2.00
Style CON-CONVENTIONAL
Foundation 03-CONTINOUS-SLAB
Exterior 08-VINYL/ALUMINUM
Const Type
Heating 05-PACKAGE-HEAT/COOL
Air Cond
Plumbing Baths (Full):   2
Baths (Half):   1
Extra Fixtures:   0
Total Plumbing Fixtures:   8 
Bedrooms 3
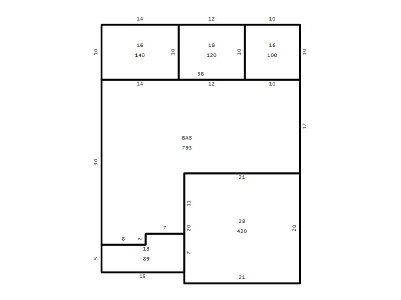
Main Body (SQFT) 793
Year Built 2007
Additions 7
Effective Year 2007
Remodeled 0
Interior Adj.
Other Features
Building Total & Improvement Details

Grade B-10 110%
Percentage Complete 100
Total Adjusted Replacement Cost New $383,814
Physical Depreciation (% Bad) 0%
Depreciated Value $314,727
Economic Depreciation (% Bad) 0%
Functional Depreciation (% Bad) 0%
Total Depreciated Value $314,727
Market Area Factor 1.00
Building Value $314,727
Misc Improvements Value $1,684
Total Improvement Value $316,411

Assessed Land Value $108,500
   
Assessed Total Value $424,911



Addition Summary 
StoryTypeCodeArea
1.00 Covered Porch 18 89
1.00 Garage 28 420
1.00 Frame Deck 16 140
1.00 Frame Deck 16 100
1.00 Covered Porch 18 120
1.00 Res Frame 2Nd Flr FR02 745
1.00 Res Frm 2Nd Flr Over Garg FR02 430
 
Other Improvements 
UnitsDescriptionItemCodeYear% BadValue
12x12 DIMENSIONS Canopy w/Floor 2007 30 1684
 


Building Sketch
Photograph
Building Sketch Building Photo
(Click sketch for bigger image)




Copyright © 2022 Durham County, North Carolina.