Building Summary

Data last updated on: 4/2/2026     Ownership current as of: 3/30/2026     Tax Year: 2026
REID 207702

PIN # 0860-17-4554

Location Address Property Description
613 ASHBURN LN RAVENSTONE/PH:02/SEC:03B/ LT#269 PL:000176-000265
   
Property Owner Owner's Mailing Address
MENON, PRAKASH;PRAKASH, RANJINI
613 ASHBURN LN
DURHAM NC 27703
Parcel
Buildings
Misc Improvements
Land
Deeds
Notes
Sales
Photos
Map
Building Location Address
613 ASHBURN LN
Building Description
RESFR-RES-FRM-OR-EQ
Card   of  1
Bldg Type RESIDENTIAL
Units 1
Living Area (SQFT) 2198
Number of Stories 2.00
Style CON-CONVENTIONAL
Foundation 03-CONTINOUS-SLAB
Exterior 08-VINYL/ALUMINUM
Const Type
Heating 05-PACKAGE-HEAT/COOL
Air Cond
Plumbing Baths (Full):   2
Baths (Half):   1
Extra Fixtures:   0
Total Plumbing Fixtures:   8 
Bedrooms 4
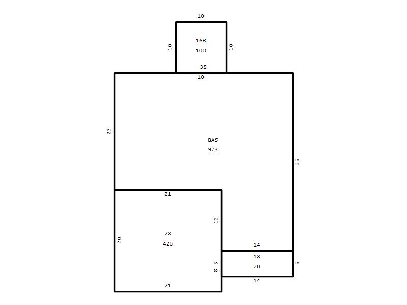
Main Body (SQFT) 973
Year Built 2009
Additions 5
Effective Year 2009
Remodeled 0
Interior Adj.
Other Features
Building Total & Improvement Details

Grade B-10 110%
Percentage Complete 100
Total Adjusted Replacement Cost New $396,181
Physical Depreciation (% Bad) 0%
Depreciated Value $332,792
Economic Depreciation (% Bad) 0%
Functional Depreciation (% Bad) 0%
Total Depreciated Value $332,792
Market Area Factor 1.00
Building Value $332,792
Misc Improvements Value $191
Total Improvement Value $332,983

Assessed Land Value $107,625
   
Assessed Total Value $440,608



Addition Summary 
StoryTypeCodeArea
1.00 Garage 28 420
1.00 Concrete Slab 16B 100
1.00 Covered Porch 18 70
1.00 Res Frame 2Nd Flr FR02 973
1.00 Res Frm 2Nd Flr Over Garg FR02 252
 
Other Improvements 
UnitsDescriptionItemCodeYear% BadValue
60 SIZE Storage Building 2009 75 191
 


Building Sketch
Photograph
Building Sketch Building Photo
(Click sketch for bigger image)




Copyright © 2022 Durham County, North Carolina.