Building Summary

Data last updated on: 4/2/2026     Ownership current as of: 3/30/2026     Tax Year: 2026
REID 207705

PIN # 0860-17-5389

Location Address Property Description
619 ASHBURN LN RAVENSTONE/PH:02/SEC:03B/ LT#272 PL:000176-000265
   
Property Owner Owner's Mailing Address
BRIZUELA, KENSY SOHANY MURILLO
410 GREYSTONE DR
DURHAM NC 27703
Parcel
Buildings
Misc Improvements
Land
Deeds
Notes
Sales
Photos
Map
Building Location Address
619 ASHBURN LN
Building Description
RESFR-RES-FRM-OR-EQ
Card   of  1
Bldg Type RESIDENTIAL
Units 1
Living Area (SQFT) 3621
Number of Stories 2.00
Style CON-CONVENTIONAL
Foundation 03-CONTINOUS-SLAB
Exterior 08-VINYL/ALUMINUM
Const Type
Heating 05-PACKAGE-HEAT/COOL
Air Cond
Plumbing Baths (Full):   2
Baths (Half):   1
Extra Fixtures:   0
Total Plumbing Fixtures:   8 
Bedrooms 6
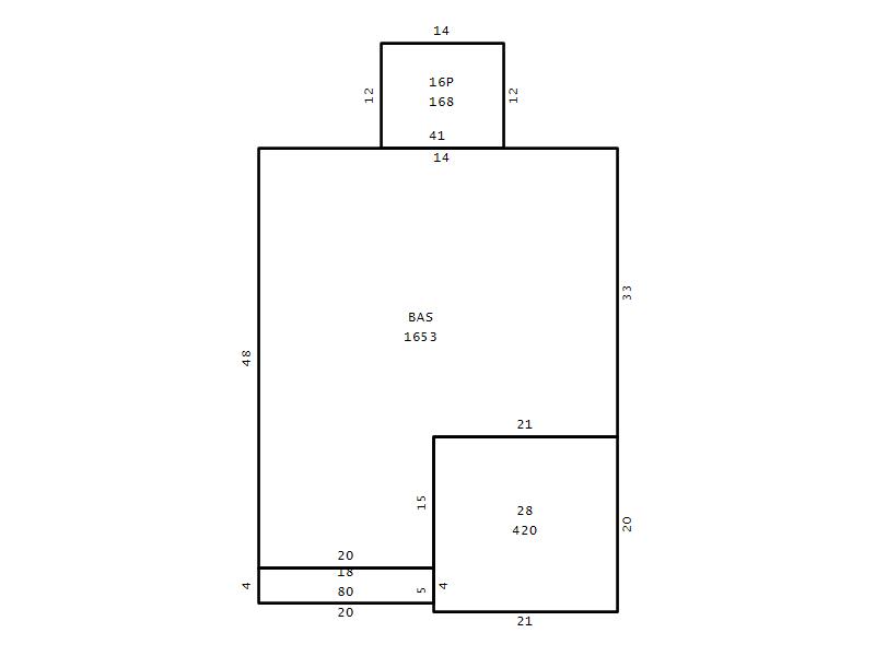
Main Body (SQFT) 1653
Year Built 2008
Additions 5
Effective Year 2008
Remodeled 0
Interior Adj.
Other Features
Building Total & Improvement Details

Grade B-10 110%
Percentage Complete 100
Total Adjusted Replacement Cost New $560,117
Physical Depreciation (% Bad) 0%
Depreciated Value $464,897
Economic Depreciation (% Bad) 0%
Functional Depreciation (% Bad) 0%
Total Depreciated Value $464,897
Market Area Factor 1.00
Building Value $464,897
Misc Improvements Value
Total Improvement Value $464,897

Assessed Land Value $109,375
   
Assessed Total Value $574,272



Addition Summary 
StoryTypeCodeArea
1.00 Patio 16P 168
1.00 Covered Porch 18 80
1.00 Garage 28 420
1.00 Res Frame 2Nd Flr FR02 1653
1.00 Res Frm 2Nd Flr Over Garg FR02 315
 
Other Improvements 
 


Building Sketch
Photograph
Building Sketch Building Photo
(Click sketch for bigger image)




Copyright © 2022 Durham County, North Carolina.