Building Summary

Data last updated on: 4/2/2026     Ownership current as of: 3/30/2026     Tax Year: 2026
REID 207711

PIN # 0860-17-2521

Location Address Property Description
610 ASHBURN LN RAVENSTONE/PH:02/SEC:03B/ LT#306 PL:000176-000265
   
Property Owner Owner's Mailing Address
WILSON, BRITTANY;WESSELS, PIETER HENDRIKUS
610 ASHBURN LN
DURHAM NC 27703
Parcel
Buildings
Misc Improvements
Land
Deeds
Notes
Sales
Photos
Map
Building Location Address
610 ASHBURN LN
Building Description
RESFR-RES-FRM-OR-EQ
Card   of  1
Bldg Type RESIDENTIAL
Units 1
Living Area (SQFT) 1878
Number of Stories 2.00
Style CON-CONVENTIONAL
Foundation 03-CONTINOUS-SLAB
Exterior 08-VINYL/ALUMINUM
Const Type
Heating 05-PACKAGE-HEAT/COOL
Air Cond
Plumbing Baths (Full):   2
Baths (Half):   1
Extra Fixtures:   0
Total Plumbing Fixtures:   8 
Bedrooms 3
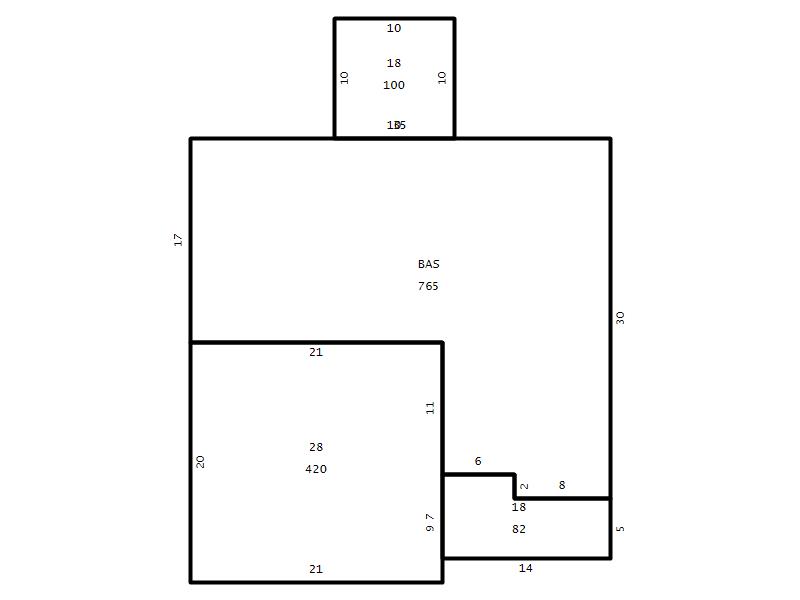
Main Body (SQFT) 765
Year Built 2008
Additions 5
Effective Year 2008
Remodeled 0
Interior Adj.
Other Features
Building Total & Improvement Details

Grade B-10 110%
Percentage Complete 100
Total Adjusted Replacement Cost New $363,695
Physical Depreciation (% Bad) 0%
Depreciated Value $301,867
Economic Depreciation (% Bad) 0%
Functional Depreciation (% Bad) 0%
Total Depreciated Value $301,867
Market Area Factor 1.00
Building Value $301,867
Misc Improvements Value
Total Improvement Value $301,867

Assessed Land Value $114,625
   
Assessed Total Value $416,492



Addition Summary 
StoryTypeCodeArea
1.00 Covered Porch 18 82
1.00 Garage 28 420
1.00 Covered Porch 18 100
1.00 Res Frame 2Nd Flr FR02 693
1.00 Res Frm 2Nd Flr Over Garg FR02 420
 
Other Improvements 
 


Building Sketch
Photograph
Building Sketch Building Photo
(Click sketch for bigger image)




Copyright © 2022 Durham County, North Carolina.