Building Summary

Data last updated on: 3/31/2026     Ownership current as of: 3/26/2026     Tax Year: 2026
REID 207784

PIN # 0834-72-0776

Location Address Property Description
2020 TENNESSEE RD SWANNS MILL SF/PH:08/LT#2 63 PL:000176-000217
   
Property Owner Owner's Mailing Address
BROWN, DION;BROWN, BRITTANY
2020 TENNESSEE RD
DURHAM NC 27704
Parcel
Buildings
Misc Improvements
Land
Deeds
Notes
Sales
Photos
Map
Building Location Address
2020 TENNESSEE RD
Building Description
RESFR-RES-FRM-OR-EQ
Card   of  1
Bldg Type RESIDENTIAL
Units 1
Living Area (SQFT) 2336
Number of Stories 2.00
Style CON-CONVENTIONAL
Foundation 03-CONTINOUS-SLAB
Exterior 08-VINYL/ALUMINUM
Const Type
Heating 05-PACKAGE-HEAT/COOL
Air Cond
Plumbing Baths (Full):   2
Baths (Half):   1
Extra Fixtures:   0
Total Plumbing Fixtures:   8 
Bedrooms 4
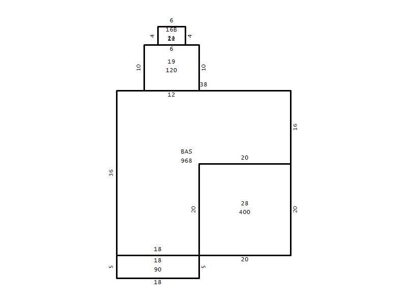
Main Body (SQFT) 968
Year Built 2009
Additions 6
Effective Year 2009
Remodeled 0
Interior Adj.
Other Features
Building Total & Improvement Details

Grade C+5 105%
Percentage Complete 100
Total Adjusted Replacement Cost New $397,964
Physical Depreciation (% Bad) 0%
Depreciated Value $334,290
Economic Depreciation (% Bad) 0%
Functional Depreciation (% Bad) 0%
Total Depreciated Value $334,290
Market Area Factor 1.00
Building Value $334,290
Misc Improvements Value
Total Improvement Value $334,290

Assessed Land Value $56,500
   
Assessed Total Value $390,790



Addition Summary 
StoryTypeCodeArea
1.00 Concrete Slab 16B 24
1.00 Covered Porch 18 90
1.00 Screen Porch 19 120
1.00 Garage 28 400
1.00 Res Frame 2Nd Flr FR02 968
1.00 Res Frm 2Nd Flr Over Garg FR02 400
 
Other Improvements 
 


Building Sketch
Photograph
Building Sketch Building Photo
(Click sketch for bigger image)




Copyright © 2022 Durham County, North Carolina.