Building Summary

Data last updated on: 3/31/2026     Ownership current as of: 3/26/2026     Tax Year: 2026
REID 207797

PIN # 0834-62-9614

Location Address Property Description
2015 TENNESSEE RD SWANNS MILL SF/PH:08/LT#2 60 PL:000176-000217
   
Property Owner Owner's Mailing Address
JOHNSON, SHERARD;JOHNSON, JEAN E CARTER
2015 TENNESSEE RD
DURHAM NC 27704
Parcel
Buildings
Misc Improvements
Land
Deeds
Notes
Sales
Photos
Map
Building Location Address
2015 TENNESSEE RD
Building Description
RESFR-RES-FRM-OR-EQ
Card   of  1
Bldg Type RESIDENTIAL
Units 1
Living Area (SQFT) 2316
Number of Stories 2.00
Style CON-CONVENTIONAL
Foundation 03-CONTINOUS-SLAB
Exterior 08-VINYL/ALUMINUM
Const Type
Heating 05-PACKAGE-HEAT/COOL
Air Cond
Plumbing Baths (Full):   2
Baths (Half):   1
Extra Fixtures:   0
Total Plumbing Fixtures:   8 
Bedrooms 4
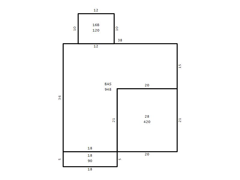
Main Body (SQFT) 948
Year Built 2007
Additions 5
Effective Year 2007
Remodeled 0
Interior Adj.
Other Features
Building Total & Improvement Details

Grade C+5 105%
Percentage Complete 100
Total Adjusted Replacement Cost New $391,297
Physical Depreciation (% Bad) 0%
Depreciated Value $320,864
Economic Depreciation (% Bad) 0%
Functional Depreciation (% Bad) 0%
Total Depreciated Value $320,864
Market Area Factor 1.00
Building Value $320,864
Misc Improvements Value
Total Improvement Value $320,864

Assessed Land Value $57,500
   
Assessed Total Value $378,364



Addition Summary 
StoryTypeCodeArea
1.00 Concrete Slab 16B 120
1.00 Covered Porch 18 90
1.00 Garage 28 420
1.00 Res Frame 2Nd Flr FR02 948
1.00 Res Frm 2Nd Flr Over Garg FR02 420
 
Other Improvements 
 


Building Sketch
Photograph
Building Sketch Building Photo
(Click sketch for bigger image)




Copyright © 2022 Durham County, North Carolina.