Building Summary

Data last updated on: 4/2/2026     Ownership current as of: 3/30/2026     Tax Year: 2026
REID 208367

PIN # 0825-44-6309

Location Address Property Description
410 HIDDEN TREASURE DR MADISON GLEN 2/PH:01/LT#1 1 PL:000178-000091
   
Property Owner Owner's Mailing Address
PASSER, ANDREW R
410 HIDDEN TREASURE DR
DURHAM NC 27712
Parcel
Buildings
Misc Improvements
Land
Deeds
Notes
Sales
Photos
Map
Building Location Address
410 HIDDEN TREASURE DR
Building Description
RESFR-RES-FRM-OR-EQ
Card   of  1
Bldg Type RESIDENTIAL
Units 1
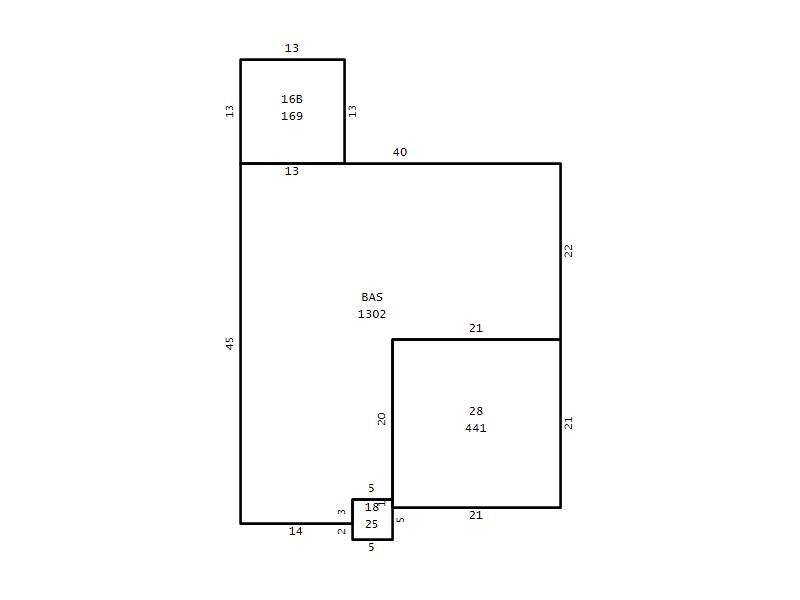
Living Area (SQFT) 1302
Number of Stories 1.00
Style RAN-RANCH
Foundation 03-CONTINOUS-SLAB
Exterior 08-VINYL/ALUMINUM
Const Type
Heating 06-HEAT-PUMP
Air Cond
Plumbing Baths (Full):   2
Baths (Half):   0
Extra Fixtures:   0
Total Plumbing Fixtures:   6 
Bedrooms 3
Main Body (SQFT) 1302
Year Built 2010
Additions 3
Effective Year 2010
Remodeled 0
Interior Adj.
Other Features
Building Total & Improvement Details

Grade B+5 125%
Percentage Complete 100
Total Adjusted Replacement Cost New $311,016
Physical Depreciation (% Bad) 0%
Depreciated Value $279,914
Economic Depreciation (% Bad) 0%
Functional Depreciation (% Bad) 0%
Total Depreciated Value $279,914
Market Area Factor 1.00
Building Value $279,914
Misc Improvements Value
Total Improvement Value $279,914

Assessed Land Value $73,125
   
Assessed Total Value $353,039



Addition Summary 
StoryTypeCodeArea
1.00 Concrete Slab 16B 169
1.00 Covered Porch 18 25
1.00 Garage 28 441
 
Other Improvements 
 


Building Sketch
Photograph
Building Sketch Building Photo
(Click sketch for bigger image)




Copyright © 2022 Durham County, North Carolina.