Building Summary

Data last updated on: 4/3/2026     Ownership current as of: 3/30/2026     Tax Year: 2026
REID 110896

PIN # 0831-28-8932

Location Address Property Description
1213 HAZEL ST PROP-MECHANICS & FARMER BANK PL:000000-000000
   
Property Owner Owner's Mailing Address
MERKLEIN, LESSLEY DALE
1213 HAZEL ST
DURHAM NC 27701
Parcel
Buildings
Misc Improvements
Land
Deeds
Notes
Sales
Photos
Map
Building Location Address
1213 HAZEL ST
Building Description
RESFR-RES-FRM-OR-EQ
Card   of  1
Bldg Type RESIDENTIAL
Units 1
Living Area (SQFT) 1372
Number of Stories 1.75
Style CAP-CAPE-COD
Foundation 04-P-FOOTING/CRWL-SP
Exterior 08-VINYL/ALUMINUM
Const Type
Heating 05-PACKAGE-HEAT/COOL
Air Cond
Plumbing Baths (Full):   3
Baths (Half):   0
Extra Fixtures:   0
Total Plumbing Fixtures:   9 
Bedrooms 3
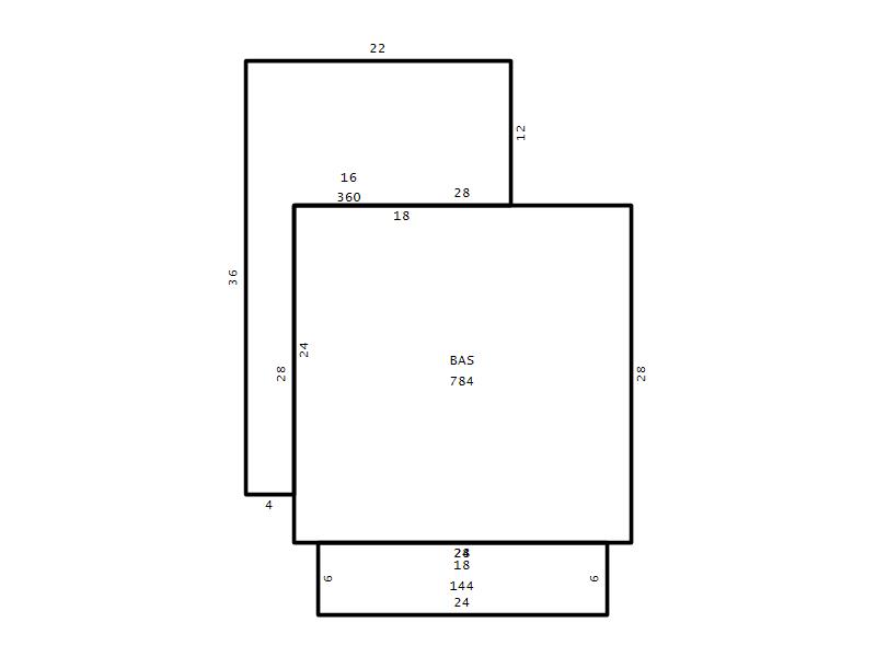
Main Body (SQFT) 784
Year Built 1943
Additions 3
Effective Year 1943
Remodeled 0
Interior Adj.
Other Features
Building Total & Improvement Details

Grade B+10 130%
Percentage Complete 100
Total Adjusted Replacement Cost New $340,961
Physical Depreciation (% Bad) 0%
Depreciated Value $289,817
Economic Depreciation (% Bad) 0%
Functional Depreciation (% Bad) 0%
Total Depreciated Value $289,817
Market Area Factor 1.00
Building Value $289,817
Misc Improvements Value
Total Improvement Value $289,817

Assessed Land Value $189,000
   
Assessed Total Value $478,817



Addition Summary 
StoryTypeCodeArea
1.00 Frame Deck 16 360
1.00 Covered Porch 18 144
1.00 Res Frame 2Nd Flr FR02 588
 
Other Improvements 
 


Building Sketch
Photograph
Building Sketch Building Photo
(Click sketch for bigger image)




Copyright © 2022 Durham County, North Carolina.