Building Summary

Data last updated on: 4/2/2026     Ownership current as of: 3/30/2026     Tax Year: 2026
REID 209722

PIN # 0850-13-0815

Location Address Property Description
115 WINDRUSH LN ASHTON HALL/PH:1A2-1A3-1A 4/LT#182 PL:000180-000312
   
Property Owner Owner's Mailing Address
SERRANO-TORRES, DAVID;DELGADO, TIFFANY NAKITA
115 WINDRUSH LN
DURHAM NC 27703
Parcel
Buildings
Misc Improvements
Land
Deeds
Notes
Sales
Photos
Map
Building Location Address
115 WINDRUSH LN
Building Description
RESFR-RES-FRM-OR-EQ
Card   of  1
Bldg Type RESIDENTIAL
Units 1
Living Area (SQFT) 3374
Number of Stories 2.00
Style CON-CONVENTIONAL
Foundation 03-CONTINOUS-SLAB
Exterior 09-HARD-B/CEMENTBRD
Const Type
Heating 05-PACKAGE-HEAT/COOL
Air Cond
Plumbing Baths (Full):   3
Baths (Half):   1
Extra Fixtures:   0
Total Plumbing Fixtures:   11 
Bedrooms 5
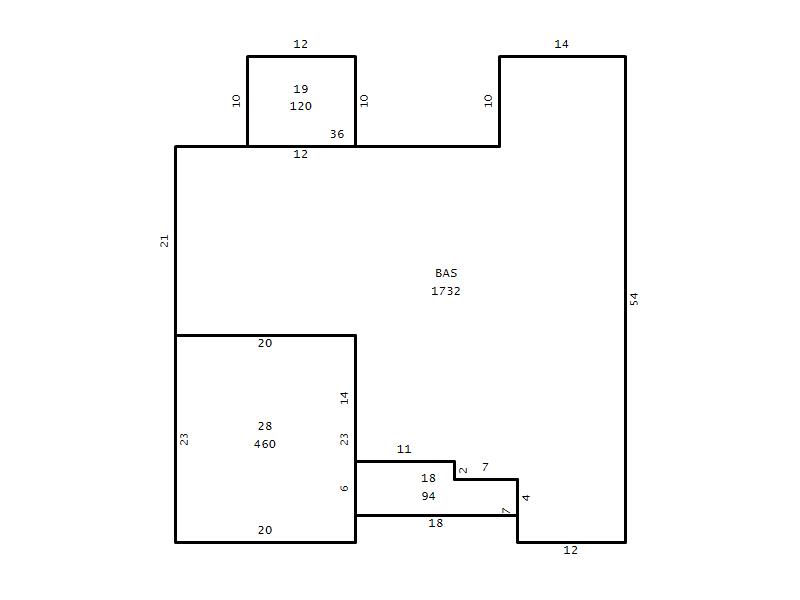
Main Body (SQFT) 1732
Year Built 2013
Additions 5
Effective Year 2013
Remodeled 0
Interior Adj.
Other Features
Building Total & Improvement Details

Grade B-5 115%
Percentage Complete 100
Total Adjusted Replacement Cost New $561,835
Physical Depreciation (% Bad) 0%
Depreciated Value $561,835
Economic Depreciation (% Bad) 0%
Functional Depreciation (% Bad) 0%
Total Depreciated Value $561,835
Market Area Factor 0.90
Building Value $505,652
Misc Improvements Value
Total Improvement Value $505,652

Assessed Land Value $103,700
   
Assessed Total Value $609,352



Addition Summary 
StoryTypeCodeArea
1.00 Covered Porch 18 94
1.00 Screen Porch 19 120
1.00 Garage 28 460
1.00 Res Frame 2Nd Flr FR02 1442
1.00 Res Frm 2Nd Flr Over Garg FR02 200
 
Other Improvements 
 


Building Sketch
Photograph
Building Sketch Building Photo
(Click sketch for bigger image)




Copyright © 2022 Durham County, North Carolina.