Building Summary

Data last updated on: 4/2/2026     Ownership current as of: 3/30/2026     Tax Year: 2026
REID 210441

PIN # 0850-95-0346

Location Address Property Description
105 PUTTERS CT BRIGHTWOOD TRAILS/PH:02/L T#125 PL:000182-000086
   
Property Owner Owner's Mailing Address
SCOTT, CORINA R;CAHILL, VINCENT PADRAIC
105 PUTTERS CT
DURHAM NC 27703
Parcel
Buildings
Misc Improvements
Land
Deeds
Notes
Sales
Photos
Map
Building Location Address
105 PUTTERS CT
Building Description
RESFR-RES-FRM-OR-EQ
Card   of  1
Bldg Type RESIDENTIAL
Units 1
Living Area (SQFT) 2623
Number of Stories 2.00
Style CAP-CAPE-COD
Foundation 03-CONTINOUS-SLAB
Exterior 08-VINYL/ALUMINUM
Const Type
Heating 05-PACKAGE-HEAT/COOL
Air Cond
Plumbing Baths (Full):   3
Baths (Half):   1
Extra Fixtures:   0
Total Plumbing Fixtures:   11 
Bedrooms 4
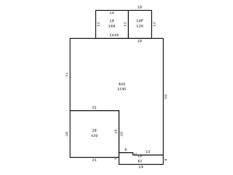
Main Body (SQFT) 1595
Year Built 2014
Additions 6
Effective Year 2014
Remodeled 0
Interior Adj.
Other Features
Building Total & Improvement Details

Grade B- 115%
Percentage Complete 100
Total Adjusted Replacement Cost New $475,824
Physical Depreciation (% Bad) 0%
Depreciated Value $423,483
Economic Depreciation (% Bad) 0%
Functional Depreciation (% Bad) 0%
Total Depreciated Value $423,483
Market Area Factor 1.00
Building Value $423,483
Misc Improvements Value
Total Improvement Value $423,483

Assessed Land Value $104,125
   
Assessed Total Value $527,608



Addition Summary 
StoryTypeCodeArea
1.00 Patio 16P 120
1.00 Covered Porch 18 168
1.00 Garage 28 420
1.00 Covered Porch 18 82
1.00 Res Frame 2Nd Flr FR02 650
1.00 Res Frm 2Nd Flr Over Garg FR02 378
 
Other Improvements 
 


Building Sketch
Photograph
Building Sketch Building Photo
(Click sketch for bigger image)




Copyright © 2022 Durham County, North Carolina.