Building Summary

Data last updated on: 4/2/2026     Ownership current as of: 3/30/2026     Tax Year: 2026
REID 210462

PIN # 0850-84-7816

Location Address Property Description
817 POPLAR ST BRIGHTWOOD TRAILS/PH:02/L T#099 PL:000182-000088
   
Property Owner Owner's Mailing Address
TORRICO-TEAVE, HEIRANGI;SINNERY, ANDREW
817 POPLAR ST
DURHAM NC 27703
Parcel
Buildings
Misc Improvements
Land
Deeds
Notes
Sales
Photos
Map
Building Location Address
817 POPLAR ST
Building Description
RESFR-RES-FRM-OR-EQ
Card   of  1
Bldg Type RESIDENTIAL
Units 1
Living Area (SQFT) 2662
Number of Stories 2.00
Style CON-CONVENTIONAL
Foundation 04-P-FOOTING/CRWL-SP
Exterior 08-VINYL/ALUMINUM
Const Type
Heating 05-PACKAGE-HEAT/COOL
Air Cond
Plumbing Baths (Full):   2
Baths (Half):   1
Extra Fixtures:   0
Total Plumbing Fixtures:   8 
Bedrooms 4
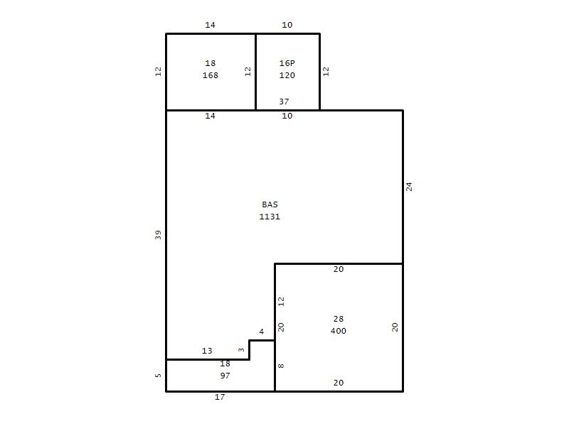
Main Body (SQFT) 1131
Year Built 2014
Additions 6
Effective Year 2014
Remodeled 0
Interior Adj.
Other Features
Building Total & Improvement Details

Grade B- 115%
Percentage Complete 100
Total Adjusted Replacement Cost New $486,972
Physical Depreciation (% Bad) 0%
Depreciated Value $433,405
Economic Depreciation (% Bad) 0%
Functional Depreciation (% Bad) 0%
Total Depreciated Value $433,405
Market Area Factor 1.00
Building Value $433,405
Misc Improvements Value
Total Improvement Value $433,405

Assessed Land Value $105,000
   
Assessed Total Value $538,405



Addition Summary 
StoryTypeCodeArea
1.00 Patio 16P 120
1.00 Covered Porch 18 97
1.00 Garage 28 400
1.00 Covered Porch 18 168
1.00 Res Frame 2Nd Flr FR02 1131
1.00 Res Frm 2Nd Flr Over Garg FR02 400
 
Other Improvements 
 


Building Sketch
Photograph
Building Sketch Building Photo
(Click sketch for bigger image)




Copyright © 2022 Durham County, North Carolina.