Building Summary

Data last updated on: 4/2/2026     Ownership current as of: 3/30/2026     Tax Year: 2026
REID 210469

PIN # 0850-85-6023

Location Address Property Description
814 POPLAR ST BRIGHTWOOD TRAILS/PH:02/L T#251 PL:000182-000088
   
Property Owner Owner's Mailing Address
MILLER, MATTHEW;MILLER, LESLIE
814 POPLAR ST
DURHAM NC 27703
Parcel
Buildings
Misc Improvements
Land
Deeds
Notes
Sales
Photos
Map
Building Location Address
814 POPLAR ST
Building Description
RESFR-RES-FRM-OR-EQ
Card   of  1
Bldg Type RESIDENTIAL
Units 1
Living Area (SQFT) 2424
Number of Stories 2.00
Style CON-CONVENTIONAL
Foundation 03-CONTINOUS-SLAB
Exterior 08-VINYL/ALUMINUM
Const Type
Heating 05-PACKAGE-HEAT/COOL
Air Cond
Plumbing Baths (Full):   2
Baths (Half):   1
Extra Fixtures:   0
Total Plumbing Fixtures:   8 
Bedrooms 4
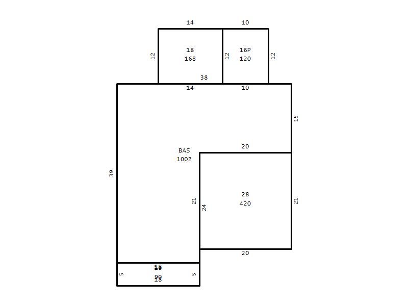
Main Body (SQFT) 1002
Year Built 2015
Additions 6
Effective Year 2015
Remodeled 0
Interior Adj.
Other Features
Building Total & Improvement Details

Grade B- 115%
Percentage Complete 100
Total Adjusted Replacement Cost New $450,730
Physical Depreciation (% Bad) 0%
Depreciated Value $405,657
Economic Depreciation (% Bad) 0%
Functional Depreciation (% Bad) 0%
Total Depreciated Value $405,657
Market Area Factor 1.00
Building Value $405,657
Misc Improvements Value
Total Improvement Value $405,657

Assessed Land Value $103,250
   
Assessed Total Value $508,907



Addition Summary 
StoryTypeCodeArea
1.00 Patio 16P 120
1.00 Covered Porch 18 168
1.00 Garage 28 420
1.00 Covered Porch 18 90
1.00 Res Frame 2Nd Flr FR02 1002
1.00 Res Frm 2Nd Flr Over Garg FR02 420
 
Other Improvements 
 


Building Sketch
Photograph
Building Sketch Building Photo
(Click sketch for bigger image)




Copyright © 2022 Durham County, North Carolina.