Building Summary

Data last updated on: 3/13/2026     Ownership current as of: 3/9/2026     Tax Year: 2026
REID 111082

PIN # 0831-48-9710

Location Address Property Description
1309 N HYDE PARK AVE PROP-TATUM/GOOSE CRK/BLK: J/LT#21-22 PL:00006A-000015
   
Property Owner Owner's Mailing Address
LIG ACQUISITIONS LLC
341 KILMAYNE DR STE 201
CARY NC 27511
Parcel
Buildings
Misc Improvements
Land
Deeds
Notes
Sales
Photos
Map
Building Location Address
1309 N HYDE PARK AVE
Building Description
RESMS-RES-MS-OR-EQ
Card   of  1
Bldg Type RESIDENTIAL
Units 1
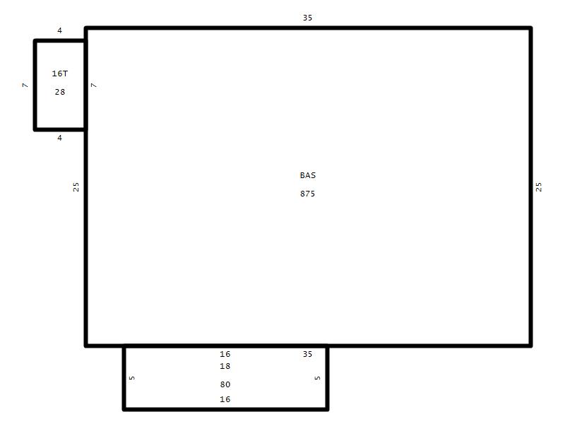
Living Area (SQFT) 875
Number of Stories 1.00
Style RAN-RANCH
Foundation 04-P-FOOTING/CRWL-SP
Exterior 02-BRICK
Const Type
Heating 03-FORCED-HOT-AIR
Air Cond
Plumbing Baths (Full):   1
Baths (Half):   0
Extra Fixtures:   0
Total Plumbing Fixtures:   3 
Bedrooms 3
Main Body (SQFT) 875
Year Built 1962
Additions 2
Effective Year 1962
Remodeled 0
Interior Adj.
Other Features
Building Total & Improvement Details

Grade C 100%
Percentage Complete 100
Total Adjusted Replacement Cost New $183,686
Physical Depreciation (% Bad) 0%
Depreciated Value $102,864
Economic Depreciation (% Bad) 0%
Functional Depreciation (% Bad) 0%
Total Depreciated Value $102,864
Market Area Factor 1.00
Building Value $102,864
Misc Improvements Value
Total Improvement Value $102,864

Assessed Land Value $102,600
   
Assessed Total Value $205,464



Addition Summary 
StoryTypeCodeArea
1.00 Terrace/Raised Patio 16T 28
1.00 Covered Porch 18 80
 
Other Improvements 
 


Building Sketch
Photograph
Building Sketch Building Photo
(Click sketch for bigger image)




Copyright © 2022 Durham County, North Carolina.