Building Summary

Data last updated on: 4/2/2026     Ownership current as of: 3/30/2026     Tax Year: 2026
REID 210564

PIN # 0824-51-7447

Location Address Property Description
711 WOODSIDE PARK LN HORTON HILLS/PH:09/SEC:10 /LT#06 PL:000182-000192
   
Property Owner Owner's Mailing Address
LORS, WILLIAM;BAK, VANESSA
711 WOODSIDE PARK LN
DURHAM NC 27704
Parcel
Buildings
Misc Improvements
Land
Deeds
Notes
Sales
Photos
Map
Building Location Address
711 WOODSIDE PARK LN
Building Description
RESFR-RES-FRM-OR-EQ
Card   of  1
Bldg Type RESIDENTIAL
Units 1
Living Area (SQFT) 1584
Number of Stories 2.00
Style CON-CONVENTIONAL
Foundation 03-CONTINOUS-SLAB
Exterior 08-VINYL/ALUMINUM
Const Type
Heating 05-PACKAGE-HEAT/COOL
Air Cond
Plumbing Baths (Full):   2
Baths (Half):   1
Extra Fixtures:   0
Total Plumbing Fixtures:   8 
Bedrooms 3
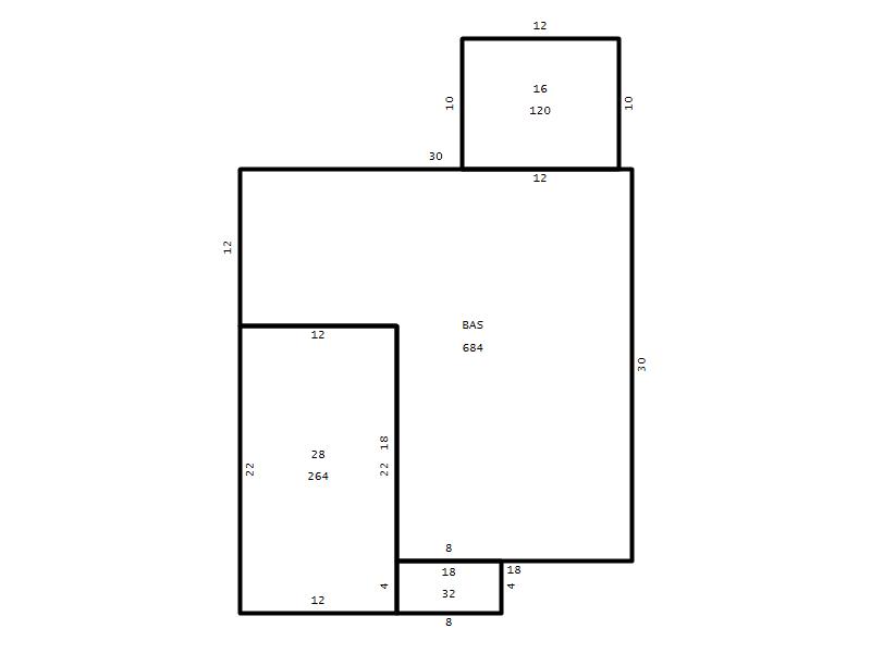
Main Body (SQFT) 684
Year Built 2010
Additions 5
Effective Year 2010
Remodeled 0
Interior Adj.
Other Features
Building Total & Improvement Details

Grade C+ 110%
Percentage Complete 100
Total Adjusted Replacement Cost New $312,713
Physical Depreciation (% Bad) 0%
Depreciated Value $265,806
Economic Depreciation (% Bad) 0%
Functional Depreciation (% Bad) 0%
Total Depreciated Value $265,806
Market Area Factor 1.00
Building Value $265,806
Misc Improvements Value $5,664
Total Improvement Value $271,470

Assessed Land Value $112,500
   
Assessed Total Value $383,970



Addition Summary 
StoryTypeCodeArea
1.00 Frame Deck 16 120
1.00 Covered Porch 18 32
1.00 Garage 28 264
1.00 Res Frame 2Nd Flr FR02 684
1.00 Res Frm 2Nd Flr Over Garg FR02 216
 
Other Improvements 
UnitsDescriptionItemCodeYear% BadValue
264 SIZE Deck 2010 25 5664
 


Building Sketch
Photograph
Building Sketch Building Photo
(Click sketch for bigger image)




Copyright © 2022 Durham County, North Carolina.