Building Summary

Data last updated on: 3/31/2026     Ownership current as of: 3/26/2026     Tax Year: 2026
REID 211205

PIN # 0834-81-0408

Location Address Property Description
1401 SHILEY DR SWANNS MILL/PH:07/LT#174 PL:000183-000240
   
Property Owner Owner's Mailing Address
SFR, XII NM RALEIGH OWNER 1 L P
PO BOX 4900`
SCOTTSDALE AZ 85261
Parcel
Buildings
Misc Improvements
Land
Deeds
Notes
Sales
Photos
Map
Building Location Address
1401 SHILEY DR
Building Description
RESFR-RES-FRM-OR-EQ
Card   of  1
Bldg Type RESIDENTIAL
Units 1
Living Area (SQFT) 2173
Number of Stories 2.00
Style CON-CONVENTIONAL
Foundation 03-CONTINOUS-SLAB
Exterior 08-VINYL/ALUMINUM
Const Type
Heating 05-PACKAGE-HEAT/COOL
Air Cond
Plumbing Baths (Full):   2
Baths (Half):   1
Extra Fixtures:   0
Total Plumbing Fixtures:   8 
Bedrooms 3
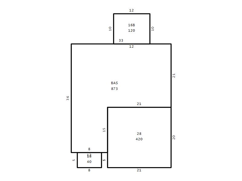
Main Body (SQFT) 873
Year Built 2013
Additions 5
Effective Year 2013
Remodeled 0
Interior Adj.
Other Features
Building Total & Improvement Details

Grade C+5 105%
Percentage Complete 100
Total Adjusted Replacement Cost New $374,239
Physical Depreciation (% Bad) 0%
Depreciated Value $329,330
Economic Depreciation (% Bad) 0%
Functional Depreciation (% Bad) 0%
Total Depreciated Value $329,330
Market Area Factor 1.00
Building Value $329,330
Misc Improvements Value
Total Improvement Value $329,330

Assessed Land Value $56,000
   
Assessed Total Value $385,330



Addition Summary 
StoryTypeCodeArea
1.00 Concrete Slab 16B 120
1.00 Covered Porch 18 40
1.00 Garage 28 420
1.00 Res Frame 2Nd Flr FR02 911
1.00 Res Frm 2Nd Flr Over Garg FR02 389
 
Other Improvements 
 


Building Sketch
Photograph
Building Sketch Building Photo
(Click sketch for bigger image)




Copyright © 2022 Durham County, North Carolina.