Building Summary

Data last updated on: 3/31/2026     Ownership current as of: 3/26/2026     Tax Year: 2026
REID 211217

PIN # 0834-71-9299

Location Address Property Description
2 BOLTER CT SWANNS MILL/PH:07/LT#186 PL:000183-000240
   
Property Owner Owner's Mailing Address
DACANAY, MICHAEL
2 BOLTER CT
DURHAM NC 27704
Parcel
Buildings
Misc Improvements
Land
Deeds
Notes
Sales
Photos
Map
Building Location Address
2 BOLTER CT
Building Description
RESFR-RES-FRM-OR-EQ
Card   of  1
Bldg Type RESIDENTIAL
Units 1
Living Area (SQFT) 2720
Number of Stories 2.00
Style CON-CONVENTIONAL
Foundation 03-CONTINOUS-SLAB
Exterior 08-VINYL/ALUMINUM
Const Type
Heating 05-PACKAGE-HEAT/COOL
Air Cond
Plumbing Baths (Full):   2
Baths (Half):   1
Extra Fixtures:   0
Total Plumbing Fixtures:   8 
Bedrooms 3
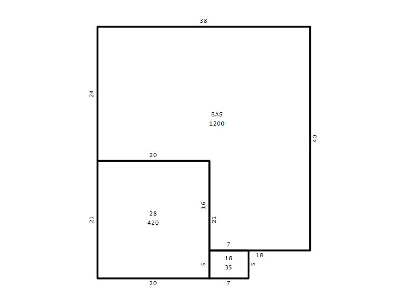
Main Body (SQFT) 1200
Year Built 2011
Additions 4
Effective Year 2011
Remodeled 0
Interior Adj.
Other Features
Building Total & Improvement Details

Grade C+5 105%
Percentage Complete 100
Total Adjusted Replacement Cost New $424,168
Physical Depreciation (% Bad) 0%
Depreciated Value $364,784
Economic Depreciation (% Bad) 0%
Functional Depreciation (% Bad) 0%
Total Depreciated Value $364,784
Market Area Factor 1.00
Building Value $364,784
Misc Improvements Value $789
Total Improvement Value $365,573

Assessed Land Value $57,500
   
Assessed Total Value $423,073



Addition Summary 
StoryTypeCodeArea
1.00 Covered Porch 18 35
1.00 Garage 28 420
1.00 Res Frame 2Nd Flr FR02 1200
1.00 Res Frm 2Nd Flr Over Garg FR02 320
 
Other Improvements 
UnitsDescriptionItemCodeYear% BadValue
10x12 DIMENSIONS Concrete Slab 2012 25 789
 


Building Sketch
Photograph
Building Sketch Building Photo
(Click sketch for bigger image)




Copyright © 2022 Durham County, North Carolina.