Building Summary

Data last updated on: 3/31/2026     Ownership current as of: 3/26/2026     Tax Year: 2026
REID 211248

PIN # 0834-71-5959

Location Address Property Description
3122 GENLEE DR SWANNS MILL/PH:07/LT#217 PL:000183-000238
   
Property Owner Owner's Mailing Address
CARLON, IRMA YARELI RODRIGUEZ;CARLON, ZURISADAI RODRIGUEZ;RODRIGUEZ, CIRO
3122 GENLEE DR
DURHAM NC 27704
Parcel
Buildings
Misc Improvements
Land
Deeds
Notes
Sales
Photos
Map
Building Location Address
3122 GENLEE DR
Building Description
RESFR-RES-FRM-OR-EQ
Card   of  1
Bldg Type RESIDENTIAL
Units 1
Living Area (SQFT) 1883
Number of Stories 2.00
Style CON-CONVENTIONAL
Foundation 03-CONTINOUS-SLAB
Exterior 08-VINYL/ALUMINUM
Const Type
Heating 05-PACKAGE-HEAT/COOL
Air Cond
Plumbing Baths (Full):   2
Baths (Half):   1
Extra Fixtures:   0
Total Plumbing Fixtures:   8 
Bedrooms 3
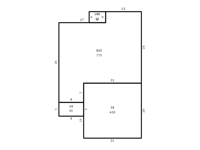
Main Body (SQFT) 775
Year Built 2009
Additions 5
Effective Year 2009
Remodeled 0
Interior Adj.
Other Features
Building Total & Improvement Details

Grade C+5 105%
Percentage Complete 100
Total Adjusted Replacement Cost New $341,148
Physical Depreciation (% Bad) 0%
Depreciated Value $286,564
Economic Depreciation (% Bad) 0%
Functional Depreciation (% Bad) 0%
Total Depreciated Value $286,564
Market Area Factor 1.00
Building Value $286,564
Misc Improvements Value
Total Improvement Value $286,564

Assessed Land Value $58,000
   
Assessed Total Value $344,564



Addition Summary 
StoryTypeCodeArea
1.00 Concrete Slab 16B 24
1.00 Covered Porch 18 45
1.00 Garage 28 420
1.00 Res Frame 2Nd Flr FR02 719
1.00 Res Frm 2Nd Flr Over Garg FR02 389
 
Other Improvements 
 


Building Sketch
Photograph
Building Sketch Building Photo
(Click sketch for bigger image)




Copyright © 2022 Durham County, North Carolina.