Building Summary

Data last updated on: 3/31/2026     Ownership current as of: 3/26/2026     Tax Year: 2026
REID 211255

PIN # 0834-72-2220

Location Address Property Description
3136 GENLEE DR SWANNS MILL/PH:07/LT#224 PL:000183-000238
   
Property Owner Owner's Mailing Address
TRAN, KHUONG TRONG;TRUONG, MY NHU
3136 GENLEE DR
DURHAM NC 27704
Parcel
Buildings
Misc Improvements
Land
Deeds
Notes
Sales
Photos
Map
Building Location Address
3136 GENLEE DR
Building Description
RESFR-RES-FRM-OR-EQ
Card   of  1
Bldg Type RESIDENTIAL
Units 1
Living Area (SQFT) 2840
Number of Stories 2.00
Style CON-CONVENTIONAL
Foundation 03-CONTINOUS-SLAB
Exterior 08-VINYL/ALUMINUM
Const Type
Heating 05-PACKAGE-HEAT/COOL
Air Cond
Plumbing Baths (Full):   2
Baths (Half):   1
Extra Fixtures:   0
Total Plumbing Fixtures:   8 
Bedrooms 5
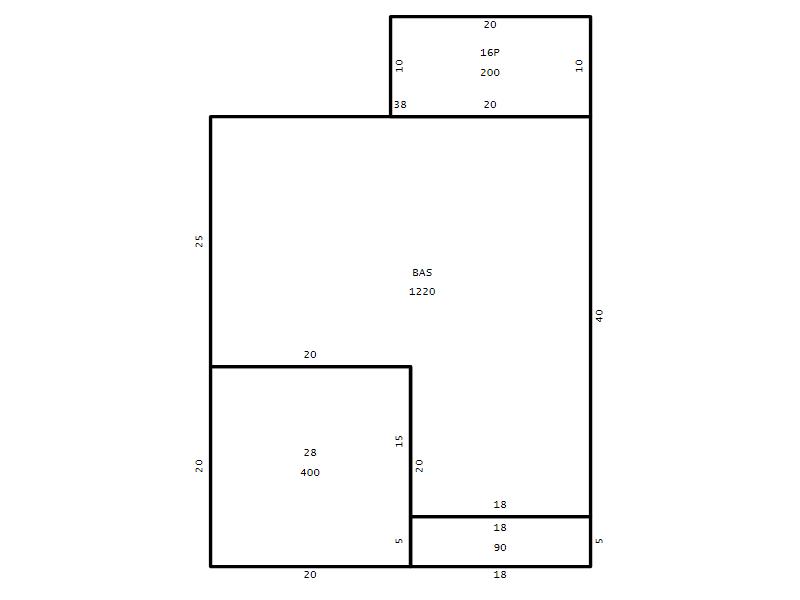
Main Body (SQFT) 1220
Year Built 2009
Additions 5
Effective Year 2009
Remodeled 0
Interior Adj.
Other Features
Building Total & Improvement Details

Grade C+5 105%
Percentage Complete 100
Total Adjusted Replacement Cost New $439,048
Physical Depreciation (% Bad) 0%
Depreciated Value $368,800
Economic Depreciation (% Bad) 0%
Functional Depreciation (% Bad) 0%
Total Depreciated Value $368,800
Market Area Factor 1.00
Building Value $368,800
Misc Improvements Value
Total Improvement Value $368,800

Assessed Land Value $58,500
   
Assessed Total Value $427,300



Addition Summary 
StoryTypeCodeArea
1.00 Patio 16P 200
1.00 Covered Porch 18 90
1.00 Garage 28 400
1.00 Res Frame 2Nd Flr FR02 1220
1.00 Res Frm 2Nd Flr Over Garg FR02 400
 
Other Improvements 
 


Building Sketch
Photograph
Building Sketch Building Photo
(Click sketch for bigger image)




Copyright © 2022 Durham County, North Carolina.