Building Summary

Data last updated on: 4/2/2026     Ownership current as of: 3/30/2026     Tax Year: 2026
REID 211683

PIN # 0852-63-5960

Location Address Property Description
1106 RED CREST LN CARDINAL LAKE/PH:10/LT#10 1 PL:000185-000077
   
Property Owner Owner's Mailing Address
JAGROOP, SADIA;JAGROOP, CHRIS STEVEN
1106 RED CREST LN
DURHAM NC 27703
Parcel
Buildings
Misc Improvements
Land
Deeds
Notes
Sales
Photos
Map
Building Location Address
1106 RED CREST LN
Building Description
RESFR-RES-FRM-OR-EQ
Card   of  1
Bldg Type RESIDENTIAL
Units 1
Living Area (SQFT) 2347
Number of Stories 2.00
Style CON-CONVENTIONAL
Foundation 03-CONTINOUS-SLAB
Exterior 08-VINYL/ALUMINUM
Const Type
Heating 05-PACKAGE-HEAT/COOL
Air Cond
Plumbing Baths (Full):   2
Baths (Half):   1
Extra Fixtures:   0
Total Plumbing Fixtures:   8 
Bedrooms 3
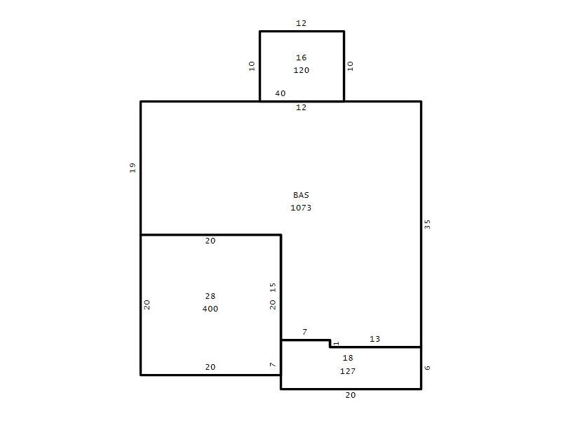
Main Body (SQFT) 1073
Year Built 2010
Additions 5
Effective Year 2010
Remodeled 0
Interior Adj.
Other Features
Building Total & Improvement Details

Grade C+ 110%
Percentage Complete 100
Total Adjusted Replacement Cost New $416,669
Physical Depreciation (% Bad) 0%
Depreciated Value $354,169
Economic Depreciation (% Bad) 0%
Functional Depreciation (% Bad) 0%
Total Depreciated Value $354,169
Market Area Factor 1.00
Building Value $354,169
Misc Improvements Value
Total Improvement Value $354,169

Assessed Land Value $76,875
   
Assessed Total Value $431,044



Addition Summary 
StoryTypeCodeArea
1.00 Frame Deck 16 120
1.00 Covered Porch 18 127
1.00 Garage 28 400
1.00 Res Frame 2Nd Flr FR02 954
1.00 Res Frm 2Nd Flr Over Garg FR02 320
 
Other Improvements 
 


Building Sketch
Photograph
Building Sketch Building Photo
(Click sketch for bigger image)




Copyright © 2022 Durham County, North Carolina.