Building Summary

Data last updated on: 4/2/2026     Ownership current as of: 3/30/2026     Tax Year: 2026
REID 211894

PIN # 0825-44-3094

Location Address Property Description
434 HIDDEN TREASURE DR MADISON GLEN 2/PH:02-03/L T#017 PL:000185-000291
   
Property Owner Owner's Mailing Address
WATERS, FAITH;WATERS, LINWOOD E;EDWARDS, ERIN LEIGH
434 HIDDEN TREASURE DR
DURHAM NC 27712
Parcel
Buildings
Misc Improvements
Land
Deeds
Notes
Sales
Photos
Map
Building Location Address
434 HIDDEN TREASURE DR
Building Description
RESFR-RES-FRM-OR-EQ
Card   of  1
Bldg Type RESIDENTIAL
Units 1
Living Area (SQFT) 2329
Number of Stories 2.00
Style CON-CONVENTIONAL
Foundation 03-CONTINOUS-SLAB
Exterior 08-VINYL/ALUMINUM
Const Type
Heating 06-HEAT-PUMP
Air Cond
Plumbing Baths (Full):   2
Baths (Half):   1
Extra Fixtures:   0
Total Plumbing Fixtures:   8 
Bedrooms 4
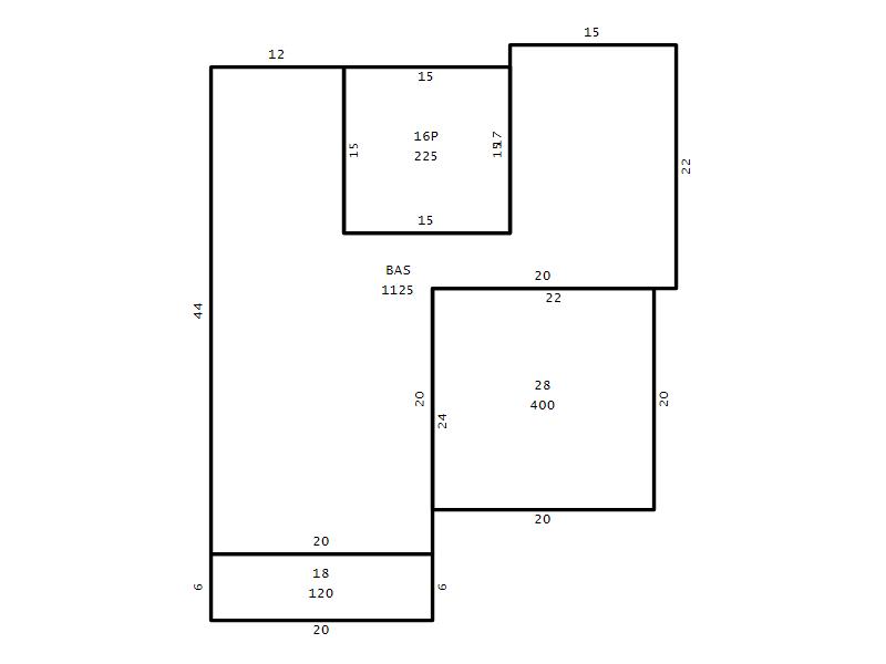
Main Body (SQFT) 1125
Year Built 2010
Additions 5
Effective Year 2010
Remodeled 0
Interior Adj.
Other Features
Building Total & Improvement Details

Grade B+10 130%
Percentage Complete 100
Total Adjusted Replacement Cost New $477,603
Physical Depreciation (% Bad) 0%
Depreciated Value $429,843
Economic Depreciation (% Bad) 0%
Functional Depreciation (% Bad) 0%
Total Depreciated Value $429,843
Market Area Factor 1.00
Building Value $429,843
Misc Improvements Value $272
Total Improvement Value $430,115

Assessed Land Value $71,875
   
Assessed Total Value $501,990



Addition Summary 
StoryTypeCodeArea
1.00 Patio 16P 225
1.00 Covered Porch 18 120
1.00 Garage 28 400
1.00 Res Frame 2Nd Flr FR02 844
1.00 Res Frm 2Nd Flr Over Garg FR02 360
 
Other Improvements 
UnitsDescriptionItemCodeYear% BadValue
10x12 DIMENSIONS Shed (Open Pole) 2010 75 272
 


Building Sketch
Photograph
Building Sketch Building Photo
(Click sketch for bigger image)




Copyright © 2022 Durham County, North Carolina.