Building Summary

Data last updated on: 4/2/2026     Ownership current as of: 3/30/2026     Tax Year: 2026
REID 211920

PIN # 0825-43-3876

Location Address Property Description
502 HIDDEN TREASURE DR MADISON GLEN 2/PH:02-03/L T#129 PL:000185-000291
   
Property Owner Owner's Mailing Address
OLPOC, REX BOYSON PATULIN;CANLAS, IVANA MAE CATACUTAN
502 HIDDEN TREASURE DR
DURHAM NC 27712
Parcel
Buildings
Misc Improvements
Land
Deeds
Notes
Sales
Photos
Map
Building Location Address
502 HIDDEN TREASURE DR
Building Description
RESFR-RES-FRM-OR-EQ
Card   of  1
Bldg Type RESIDENTIAL
Units 1
Living Area (SQFT) 1757
Number of Stories 2.00
Style CON-CONVENTIONAL
Foundation 03-CONTINOUS-SLAB
Exterior 08-VINYL/ALUMINUM
Const Type
Heating 05-PACKAGE-HEAT/COOL
Air Cond
Plumbing Baths (Full):   2
Baths (Half):   1
Extra Fixtures:   0
Total Plumbing Fixtures:   8 
Bedrooms 4
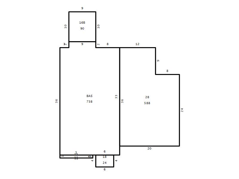
Main Body (SQFT) 738
Year Built 2010
Additions 6
Effective Year 2010
Remodeled 0
Interior Adj.
Other Features
Building Total & Improvement Details

Grade B+5 125%
Percentage Complete 100
Total Adjusted Replacement Cost New $398,588
Physical Depreciation (% Bad) 0%
Depreciated Value $338,800
Economic Depreciation (% Bad) 0%
Functional Depreciation (% Bad) 0%
Total Depreciated Value $338,800
Market Area Factor 1.00
Building Value $338,800
Misc Improvements Value
Total Improvement Value $338,800

Assessed Land Value $73,750
   
Assessed Total Value $412,550



Addition Summary 
StoryTypeCodeArea
1.00 Overhang 01 11
1.00 Concrete Slab 16B 90
1.00 Covered Porch 18 24
1.00 Garage 28 588
1.00 Res Frame 2Nd Flr FR02 720
1.00 Res Frm 2Nd Flr Over Garg FR02 288
 
Other Improvements 
 


Building Sketch
Photograph
Building Sketch Building Photo
(Click sketch for bigger image)




Copyright © 2022 Durham County, North Carolina.