Building Summary

Data last updated on: 4/2/2026     Ownership current as of: 3/30/2026     Tax Year: 2026
REID 211923

PIN # 0825-43-1854

Location Address Property Description
517 BIRCHRUN DR MADISON GLEN 2/PH:02-03/L T#118 PL:000185-000291
   
Property Owner Owner's Mailing Address
VISCONTI, KATHERINE LYNN;WOTEN, ANDREW GLENN
517 BIRCHRUN DR
DURHAM NC 27712
Parcel
Buildings
Misc Improvements
Land
Deeds
Notes
Sales
Photos
Map
Building Location Address
517 BIRCHRUN DR
Building Description
RESFR-RES-FRM-OR-EQ
Card   of  1
Bldg Type RESIDENTIAL
Units 1
Living Area (SQFT) 2728
Number of Stories 2.00
Style CON-CONVENTIONAL
Foundation 03-CONTINOUS-SLAB
Exterior 08-VINYL/ALUMINUM
Const Type
Heating 05-PACKAGE-HEAT/COOL
Air Cond
Plumbing Baths (Full):   3
Baths (Half):   0
Extra Fixtures:   0
Total Plumbing Fixtures:   9 
Bedrooms 5
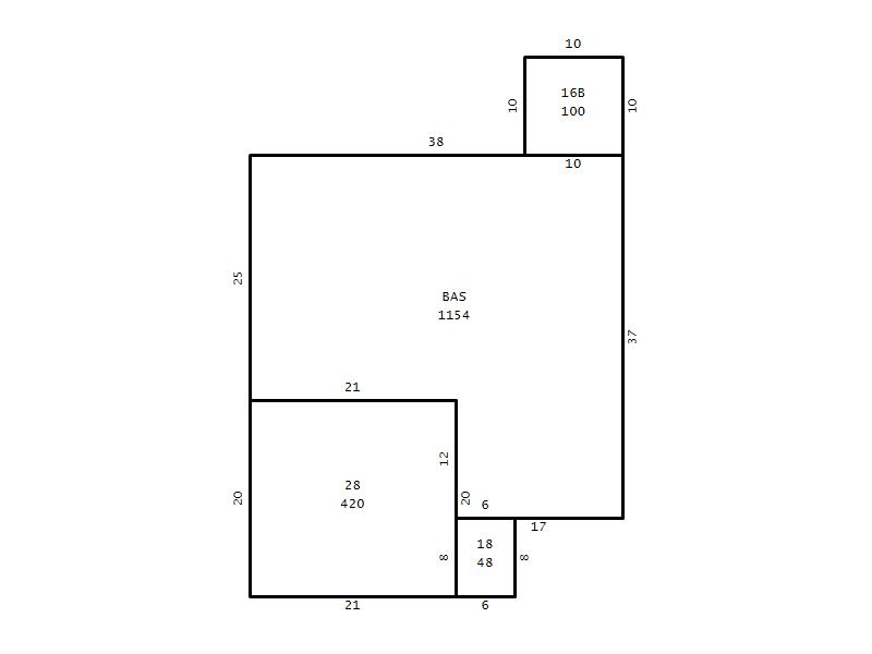
Main Body (SQFT) 1154
Year Built 2011
Additions 5
Effective Year 2011
Remodeled 0
Interior Adj.
Other Features
Building Total & Improvement Details

Grade B+5 125%
Percentage Complete 100
Total Adjusted Replacement Cost New $509,707
Physical Depreciation (% Bad) 0%
Depreciated Value $438,348
Economic Depreciation (% Bad) 0%
Functional Depreciation (% Bad) 0%
Total Depreciated Value $438,348
Market Area Factor 1.00
Building Value $438,348
Misc Improvements Value
Total Improvement Value $438,348

Assessed Land Value $71,250
   
Assessed Total Value $509,598



Addition Summary 
StoryTypeCodeArea
1.00 Concrete Slab 16B 100
1.00 Covered Porch 18 48
1.00 Garage 28 420
1.00 Res Frame 2Nd Flr FR02 1154
1.00 Res Frm 2Nd Flr Over Garg FR02 420
 
Other Improvements 
 


Building Sketch
Photograph
Building Sketch Building Photo
(Click sketch for bigger image)




Copyright © 2022 Durham County, North Carolina.