Building Summary

Data last updated on: 4/2/2026     Ownership current as of: 3/30/2026     Tax Year: 2026
REID 211931

PIN # 0825-43-5865

Location Address Property Description
417 BIRCHRUN DR MADISON GLEN 2/PH:02-03/L T#039 PL:000185-000291
   
Property Owner Owner's Mailing Address
BARTLETT, JACKSON J
417 BIRCHRUN DR
DURHAM NC 27712
Parcel
Buildings
Misc Improvements
Land
Deeds
Notes
Sales
Photos
Map
Building Location Address
417 BIRCHRUN DR
Building Description
RESFR-RES-FRM-OR-EQ
Card   of  1
Bldg Type RESIDENTIAL
Units 1
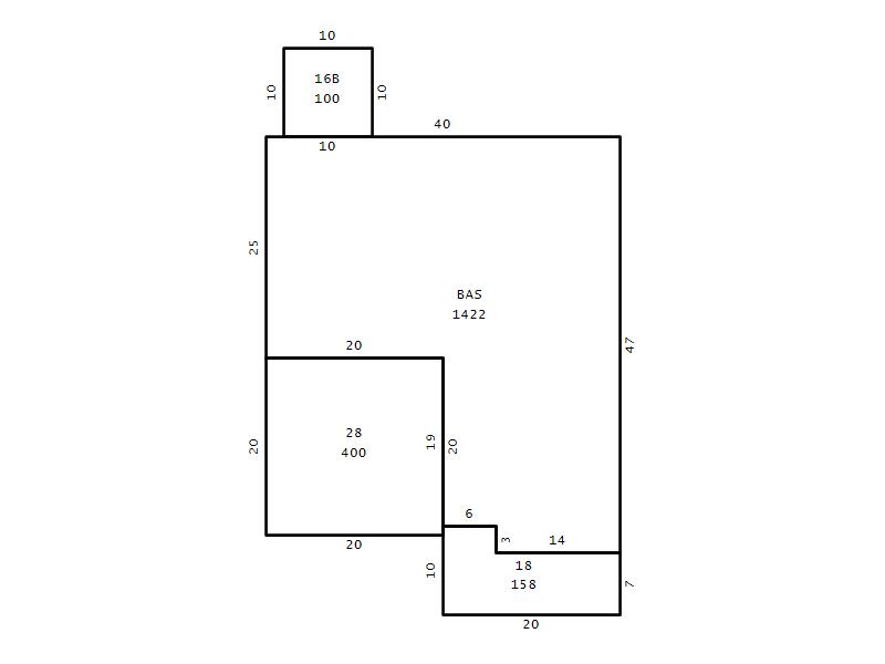
Living Area (SQFT) 1422
Number of Stories 1.00
Style RAN-RANCH
Foundation 03-CONTINOUS-SLAB
Exterior 08-VINYL/ALUMINUM
Const Type
Heating 06-HEAT-PUMP
Air Cond
Plumbing Baths (Full):   2
Baths (Half):   0
Extra Fixtures:   0
Total Plumbing Fixtures:   6 
Bedrooms 3
Main Body (SQFT) 1422
Year Built 2010
Additions 3
Effective Year 2010
Remodeled 0
Interior Adj.
Other Features
Building Total & Improvement Details

Grade B+10 130%
Percentage Complete 100
Total Adjusted Replacement Cost New $351,207
Physical Depreciation (% Bad) 0%
Depreciated Value $333,647
Economic Depreciation (% Bad) 0%
Functional Depreciation (% Bad) 0%
Total Depreciated Value $333,647
Market Area Factor 1.00
Building Value $333,647
Misc Improvements Value
Total Improvement Value $333,647

Assessed Land Value $74,375
   
Assessed Total Value $408,022



Addition Summary 
StoryTypeCodeArea
1.00 Concrete Slab 16B 100
1.00 Covered Porch 18 158
1.00 Garage 28 400
 
Other Improvements 
 


Building Sketch
Photograph
Building Sketch Building Photo
(Click sketch for bigger image)




Copyright © 2022 Durham County, North Carolina.