Building Summary

Data last updated on: 4/2/2026     Ownership current as of: 3/30/2026     Tax Year: 2026
REID 211962

PIN # 0825-32-7963

Location Address Property Description
445 WALSENBURG DR MADISON GLEN 2/PH:02-03/L T#065 PL:000185-000293
   
Property Owner Owner's Mailing Address
MORAN, ALFREDO VELAZQUEZ;CASARRUBIAS, ELIZABETH HERNANDEZ
445 WALSENBURG DR
DURHAM NC 27712
Parcel
Buildings
Misc Improvements
Land
Deeds
Notes
Sales
Photos
Map
Building Location Address
445 WALSENBURG DR
Building Description
RESFR-RES-FRM-OR-EQ
Card   of  1
Bldg Type RESIDENTIAL
Units 1
Living Area (SQFT) 2057
Number of Stories 2.00
Style CON-CONVENTIONAL
Foundation 03-CONTINOUS-SLAB
Exterior 08-VINYL/ALUMINUM
Const Type
Heating 05-PACKAGE-HEAT/COOL
Air Cond
Plumbing Baths (Full):   2
Baths (Half):   1
Extra Fixtures:   0
Total Plumbing Fixtures:   8 
Bedrooms 5
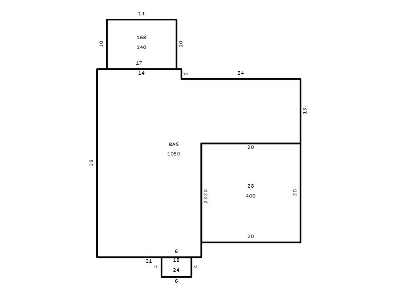
Main Body (SQFT) 1050
Year Built 2014
Additions 5
Effective Year 2014
Remodeled 0
Interior Adj.
Other Features
Building Total & Improvement Details

Grade B+5 125%
Percentage Complete 100
Total Adjusted Replacement Cost New $428,450
Physical Depreciation (% Bad) 0%
Depreciated Value $381,320
Economic Depreciation (% Bad) 0%
Functional Depreciation (% Bad) 0%
Total Depreciated Value $381,320
Market Area Factor 1.00
Building Value $381,320
Misc Improvements Value
Total Improvement Value $381,320

Assessed Land Value $71,250
   
Assessed Total Value $452,570



Addition Summary 
StoryTypeCodeArea
1.00 Concrete Slab 16B 140
1.00 Covered Porch 18 24
1.00 Garage 28 400
1.00 Res Frame 2Nd Flr FR02 767
1.00 Res Frm 2Nd Flr Over Garg FR02 240
 
Other Improvements 
 


Building Sketch
Photograph
Building Sketch Building Photo
(Click sketch for bigger image)




Copyright © 2022 Durham County, North Carolina.