Building Summary

Data last updated on: 4/2/2026     Ownership current as of: 3/30/2026     Tax Year: 2026
REID 211987

PIN # 0825-33-3126

Location Address Property Description
7 MOONBEAM CT MADISON GLEN 2/PH:02-03/L T#071 PL:000185-000295
   
Property Owner Owner's Mailing Address
HEDGES, RACHEL;HEDGES, JACOB
7 MOONBEAM CT
DURHAM NC 27712
Parcel
Buildings
Misc Improvements
Land
Deeds
Notes
Sales
Photos
Map
Building Location Address
7 MOONBEAM CT
Building Description
RESFR-RES-FRM-OR-EQ
Card   of  1
Bldg Type RESIDENTIAL
Units 1
Living Area (SQFT) 2773
Number of Stories 2.00
Style CON-CONVENTIONAL
Foundation 03-CONTINOUS-SLAB
Exterior 08-VINYL/ALUMINUM
Const Type
Heating 06-HEAT-PUMP
Air Cond
Plumbing Baths (Full):   4
Baths (Half):   0
Extra Fixtures:   0
Total Plumbing Fixtures:   12 
Bedrooms 5
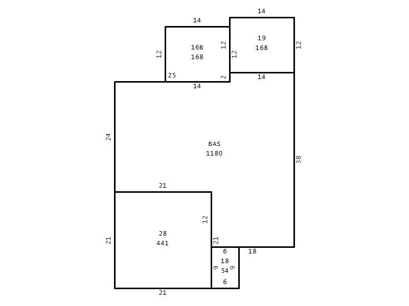
Main Body (SQFT) 1180
Year Built 2015
Additions 6
Effective Year 2015
Remodeled 0
Interior Adj.
Other Features
Building Total & Improvement Details

Grade B+5 125%
Percentage Complete 100
Total Adjusted Replacement Cost New $528,137
Physical Depreciation (% Bad) 0%
Depreciated Value $475,323
Economic Depreciation (% Bad) 0%
Functional Depreciation (% Bad) 0%
Total Depreciated Value $475,323
Market Area Factor 1.00
Building Value $475,323
Misc Improvements Value $2,419
Total Improvement Value $477,742

Assessed Land Value $75,000
   
Assessed Total Value $552,742



Addition Summary 
StoryTypeCodeArea
1.00 Concrete Slab 16B 168
1.00 Covered Porch 18 54
1.00 Screen Porch 19 168
1.00 Garage 28 441
1.00 Res Frame 2Nd Flr FR02 1152
1.00 Res Frm 2Nd Flr Over Garg FR02 441
 
Other Improvements 
UnitsDescriptionItemCodeYear% BadValue
12x13 DIMENSIONS Patio 2015 20 2419
 


Building Sketch
Photograph
Building Sketch Building Photo
(Click sketch for bigger image)




Copyright © 2022 Durham County, North Carolina.