Building Summary

Data last updated on: 4/2/2026     Ownership current as of: 3/30/2026     Tax Year: 2026
REID 212358

PIN # 0852-53-0315

Location Address Property Description
124 ROSEBUD LN CARDINAL LAKE/PH:09/LT#27 0 PL:000186-000193
   
Property Owner Owner's Mailing Address
PASQUALE, MICHAEL VINCENT;MCGOEY, ELENA
124 ROSEBUD LN
DURHAM NC 27703
Parcel
Buildings
Misc Improvements
Land
Deeds
Notes
Sales
Photos
Map
Building Location Address
124 ROSEBUD LN
Building Description
RESFR-RES-FRM-OR-EQ
Card   of  1
Bldg Type RESIDENTIAL
Units 1
Living Area (SQFT) 2526
Number of Stories 2.00
Style CON-CONVENTIONAL
Foundation 03-CONTINOUS-SLAB
Exterior 08-VINYL/ALUMINUM
Const Type
Heating 05-PACKAGE-HEAT/COOL
Air Cond
Plumbing Baths (Full):   2
Baths (Half):   1
Extra Fixtures:   0
Total Plumbing Fixtures:   8 
Bedrooms 3
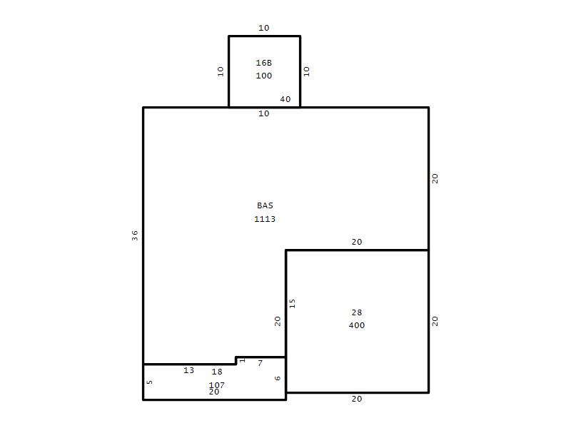
Main Body (SQFT) 1113
Year Built 2011
Additions 5
Effective Year 2011
Remodeled 0
Interior Adj.
Other Features
Building Total & Improvement Details

Grade C+ 110%
Percentage Complete 100
Total Adjusted Replacement Cost New $430,334
Physical Depreciation (% Bad) 0%
Depreciated Value $370,087
Economic Depreciation (% Bad) 0%
Functional Depreciation (% Bad) 0%
Total Depreciated Value $370,087
Market Area Factor 1.00
Building Value $370,087
Misc Improvements Value
Total Improvement Value $370,087

Assessed Land Value $72,500
   
Assessed Total Value $442,587



Addition Summary 
StoryTypeCodeArea
1.00 Concrete Slab 16B 100
1.00 Covered Porch 18 107
1.00 Garage 28 400
1.00 Res Frame 2Nd Flr FR02 1113
1.00 Res Frm 2Nd Flr Over Garg FR02 300
 
Other Improvements 
 


Building Sketch
Photograph
Building Sketch Building Photo
(Click sketch for bigger image)




Copyright © 2022 Durham County, North Carolina.