Building Summary

Data last updated on: 4/2/2026     Ownership current as of: 3/30/2026     Tax Year: 2026
REID 111262

PIN # 0831-47-4256

Location Address Property Description
912 CALVIN ST PROP-DI BONA CANU C/LT#03 PL:000199-000237
   
Property Owner Owner's Mailing Address
KNG REAL ESTATE LLC
2628 HARTLEY HILLS DR
CHARLOTTE NC 28213
Parcel
Buildings
Misc Improvements
Land
Deeds
Notes
Sales
Photos
Map
Building Location Address
912 CALVIN ST
Card   of  1        Section   of  1
Building Details

Building Name APARTMENT GARDEN MASONRY
Primary Occupancy Type COMMERCIAL
Primary Occupancy 01M-APT-GARDEN-MASON
Primary Class H1M
Primary Quality C+5
Year Built 1971
Effective Year 1971
Physical Depreciation (Rating) CAW-CDU PERCENTAGE
Physical Depreciation (% Bad) 55.00%
Economic Depreciation (% Bad) 0%
Functional Depreciation (% Bad) 0%
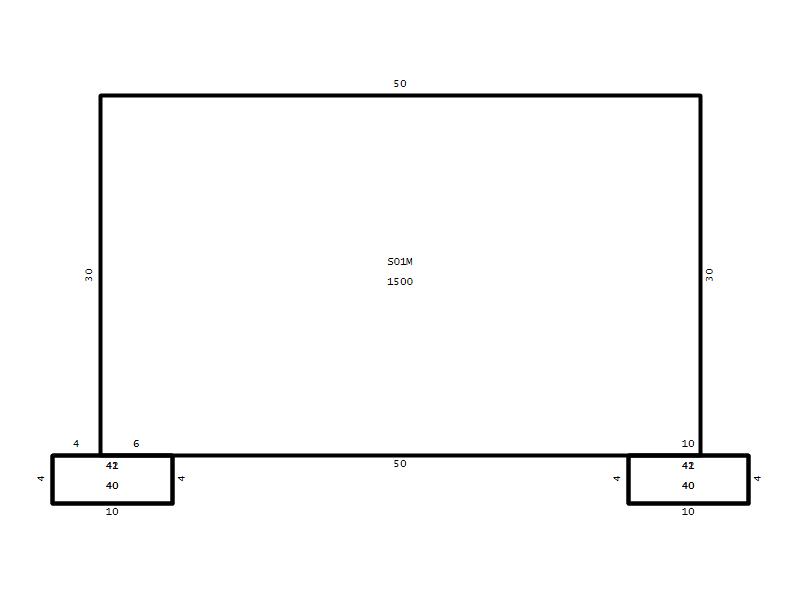
Gross Leasable Area (SQFT) 3000
Remodeled Year
Total Stories

Section Details

Occupancy Type COMMERCIAL


Class H1M
Depreciation 55%
Depreciation CAW-CDU PERCENTAGE
Heat 12-ELECT-BASE-H-COM
Occupancy 01M-APT-GARDEN-MASON
Quality C+5
Exterior Walls N/A-EXT-WALL
Building Total & Improvement Details

Total Adjusted Replacement Cost New $729,372
Physical Depreciation (% Bad) 55.00%
Depreciated Value $328,217
Economic Depreciation (% Bad) 0%
Functional Depreciation (% Bad) 0%
Total Depreciated Value $328,217
Market Area Factor 1.00
Building Value $328,217
Misc Improvements Value $3,682
Total Improvement Value $331,899

Assessed Land Value $200,000
   
Assessed Total Value $531,899


Addition Summary 
StoryTypeCodeArea
1.00 Canopy Commercial 41 40
1.00 Balcony Commercial 42 40
1.00 Canopy Commercial 41 40
1.00 Balcony Commercial 42 40
 
Other Improvements 
UnitsDescriptionItemCodeYear% BadValue
3465 SIZE Asphalt Paving 1971 75 3682
 


Building Sketch
Photograph
Building Sketch Building Photo
(Click sketch for bigger image)




Copyright © 2022 Durham County, North Carolina.