Building Summary

Data last updated on: 4/3/2026     Ownership current as of: 3/30/2026     Tax Year: 2026
REID 111304

PIN # 0831-27-7054

Location Address Property Description
701 HOLLOWAY ST PROP-TURNLIGHT PARTNERS L TD CLEVELAND-HOLLOWAY/HD PL:000000-000000
   
Property Owner Owner's Mailing Address
MCELROY, LISA
701 HOLLOWAY ST
DURHAM NC 27701

Value subject to change, property assessment under review

Parcel
Buildings
Misc Improvements
Land
Deeds
Notes
Sales
Photos
Map
Building Location Address
701 HOLLOWAY ST
Building Description
RESFR-RES-FRM-OR-EQ
Card   of  1
Bldg Type RESIDENTIAL
Units 1
Living Area (SQFT) 1574
Number of Stories 2.00
Style CON-CONVENTIONAL
Foundation 04-P-FOOTING/CRWL-SP
Exterior 01-WOOD-PANEL
Const Type
Heating 05-PACKAGE-HEAT/COOL
Air Cond
Plumbing Baths (Full):   2
Baths (Half):   1
Extra Fixtures:   0
Total Plumbing Fixtures:   8 
Bedrooms 3
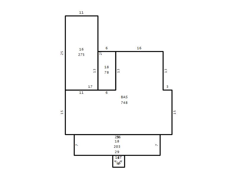
Main Body (SQFT) 748
Year Built 1910
Additions 5
Effective Year 1910
Remodeled 0
Interior Adj.
Other Features
Building Total & Improvement Details

Grade B 120%
Percentage Complete 100
Total Adjusted Replacement Cost New
Physical Depreciation (% Bad) 0%
Depreciated Value
Economic Depreciation (% Bad) 0%
Functional Depreciation (% Bad) 0%
Total Depreciated Value
Market Area Factor 1.00
Building Value
Misc Improvements Value
Total Improvement Value

Assessed Land Value
   
Assessed Total Value



Addition Summary 
StoryTypeCodeArea
1.00 Frame Deck 16 275
1.00 Terrace/Raised Patio 16T 16
1.00 Covered Porch 18 203
1.00 Covered Porch 18 78
1.00 Res Frame 2Nd Flr FR02 826
 
Other Improvements 
UnitsDescriptionItemCodeYear% BadValue
169 SIZE Deck 2018 15
624 SIZE Garage Frame Apartment 2018 15
 


Building Sketch
Photograph
Building Sketch Building Photo
(Click sketch for bigger image)




Copyright © 2022 Durham County, North Carolina.