Building Summary

Data last updated on: 4/2/2026     Ownership current as of: 3/30/2026     Tax Year: 2026
REID 212879

PIN # 0850-05-5474

Location Address Property Description
7 FAIRCROFT CT ASHTON HALL/PH:05-06/LT#0 14 PL:000187-000041
   
Property Owner Owner's Mailing Address
WANG, AARON
7 FAIRCROFT CT
DURHAM NC 27703
Parcel
Buildings
Misc Improvements
Land
Deeds
Notes
Sales
Photos
Map
Building Location Address
7 FAIRCROFT CT
Building Description
RESFR-RES-FRM-OR-EQ
Card   of  1
Bldg Type RESIDENTIAL
Units 1
Living Area (SQFT) 2480
Number of Stories 2.00
Style CON-CONVENTIONAL
Foundation 03-CONTINOUS-SLAB
Exterior 09-HARD-B/CEMENTBRD
Const Type
Heating 05-PACKAGE-HEAT/COOL
Air Cond
Plumbing Baths (Full):   2
Baths (Half):   1
Extra Fixtures:   0
Total Plumbing Fixtures:   8 
Bedrooms 3
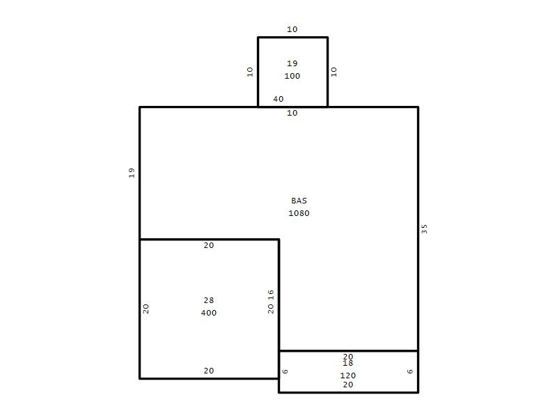
Main Body (SQFT) 1080
Year Built 2012
Additions 5
Effective Year 2012
Remodeled 0
Interior Adj.
Other Features
Building Total & Improvement Details

Grade B-5 115%
Percentage Complete 100
Total Adjusted Replacement Cost New $451,110
Physical Depreciation (% Bad) 0%
Depreciated Value $392,466
Economic Depreciation (% Bad) 0%
Functional Depreciation (% Bad) 0%
Total Depreciated Value $392,466
Market Area Factor 0.90
Building Value $353,219
Misc Improvements Value $949
Total Improvement Value $354,168

Assessed Land Value $102,850
   
Assessed Total Value $457,018



Addition Summary 
StoryTypeCodeArea
1.00 Covered Porch 18 120
1.00 Screen Porch 19 100
1.00 Garage 28 400
1.00 Res Frame 2Nd Flr FR02 1080
1.00 Res Frm 2Nd Flr Over Garg FR02 320
 
Other Improvements 
UnitsDescriptionItemCodeYear% BadValue
80 SIZE Patio 2013 20 949
 


Building Sketch
Photograph
Building Sketch Building Photo
(Click sketch for bigger image)




Copyright © 2022 Durham County, North Carolina.