Building Summary

Data last updated on: 4/2/2026     Ownership current as of: 3/30/2026     Tax Year: 2026
REID 212941

PIN # 0850-25-0382

Location Address Property Description
416 GLENVIEW LN ASHTON HALL/PH:05-06/LT#0 76 PL:000187-000043
   
Property Owner Owner's Mailing Address
KARVOSKY, STEPHANIE;ELLIOTT, JASON
1060 SLATER RD APT 301
DURHAM NC 27703
Parcel
Buildings
Misc Improvements
Land
Deeds
Notes
Sales
Photos
Map
Building Location Address
416 GLENVIEW LN
Building Description
RESFR-RES-FRM-OR-EQ
Card   of  1
Bldg Type RESIDENTIAL
Units 1
Living Area (SQFT) 2440
Number of Stories 2.00
Style CON-CONVENTIONAL
Foundation 03-CONTINOUS-SLAB
Exterior 09-HARD-B/CEMENTBRD
Const Type
Heating 05-PACKAGE-HEAT/COOL
Air Cond
Plumbing Baths (Full):   2
Baths (Half):   1
Extra Fixtures:   0
Total Plumbing Fixtures:   8 
Bedrooms 4
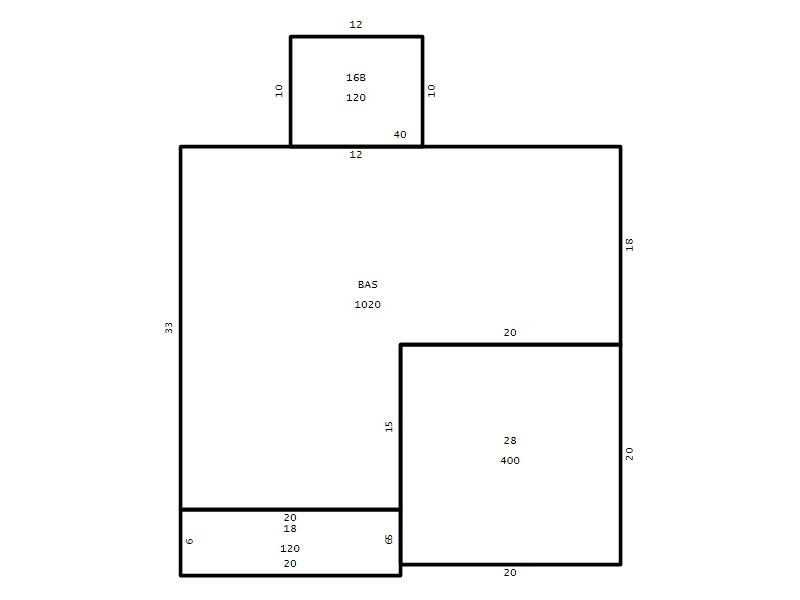
Main Body (SQFT) 1020
Year Built 2011
Additions 5
Effective Year 2011
Remodeled 0
Interior Adj.
Other Features
Building Total & Improvement Details

Grade B-5 115%
Percentage Complete 100
Total Adjusted Replacement Cost New $442,114
Physical Depreciation (% Bad) 0%
Depreciated Value $380,218
Economic Depreciation (% Bad) 0%
Functional Depreciation (% Bad) 0%
Total Depreciated Value $380,218
Market Area Factor 0.90
Building Value $342,196
Misc Improvements Value
Total Improvement Value $342,196

Assessed Land Value $98,600
   
Assessed Total Value $440,796



Addition Summary 
StoryTypeCodeArea
1.00 Concrete Slab 16B 120
1.00 Covered Porch 18 120
1.00 Garage 28 400
1.00 Res Frame 2Nd Flr FR02 1020
1.00 Res Frm 2Nd Flr Over Garg FR02 400
 
Other Improvements 
 


Building Sketch
Photograph
Building Sketch Building Photo
(Click sketch for bigger image)




Copyright © 2022 Durham County, North Carolina.