Building Summary

Data last updated on: 4/2/2026     Ownership current as of: 3/30/2026     Tax Year: 2026
REID 212959

PIN # 0850-15-2293

Location Address Property Description
302 GLENVIEW LN ASHTON HALL/PH:05-06/LT#0 96 PL:000187-000041
   
Property Owner Owner's Mailing Address
JACOB, VALSALA;JACOB, ACHSAH
302 GLENVIEW LN
DURHAM NC 27703
Parcel
Buildings
Misc Improvements
Land
Deeds
Notes
Sales
Photos
Map
Building Location Address
302 GLENVIEW LN
Building Description
RESFR-RES-FRM-OR-EQ
Card   of  1
Bldg Type RESIDENTIAL
Units 1
Living Area (SQFT) 2420
Number of Stories 2.00
Style CON-CONVENTIONAL
Foundation 03-CONTINOUS-SLAB
Exterior 09-HARD-B/CEMENTBRD
Const Type
Heating 05-PACKAGE-HEAT/COOL
Air Cond
Plumbing Baths (Full):   2
Baths (Half):   1
Extra Fixtures:   0
Total Plumbing Fixtures:   8 
Bedrooms 4
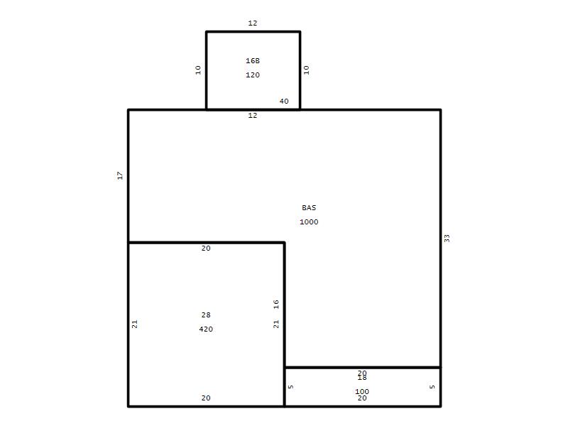
Main Body (SQFT) 1000
Year Built 2011
Additions 5
Effective Year 2011
Remodeled 0
Interior Adj.
Other Features
Building Total & Improvement Details

Grade B-5 115%
Percentage Complete 100
Total Adjusted Replacement Cost New $440,180
Physical Depreciation (% Bad) 0%
Depreciated Value $378,555
Economic Depreciation (% Bad) 0%
Functional Depreciation (% Bad) 0%
Total Depreciated Value $378,555
Market Area Factor 0.90
Building Value $340,700
Misc Improvements Value
Total Improvement Value $340,700

Assessed Land Value $96,050
   
Assessed Total Value $436,750



Addition Summary 
StoryTypeCodeArea
1.00 Concrete Slab 16B 120
1.00 Covered Porch 18 100
1.00 Garage 28 420
1.00 Res Frm 2Nd Flr Over Garg FR02 420
1.00 Res Frame 2Nd Flr FR02 1000
 
Other Improvements 
 


Building Sketch
Photograph
Building Sketch Building Photo
(Click sketch for bigger image)




Copyright © 2022 Durham County, North Carolina.