Building Summary

Data last updated on: 4/2/2026     Ownership current as of: 3/30/2026     Tax Year: 2026
REID 213751

PIN # 0840-94-9460

Location Address Property Description
360 CALLANDALE LN ASHTON HALL/PH:03-04/LTS# 211-318/LT#223 PL:000189-000355
   
Property Owner Owner's Mailing Address
LE, THIEN BA
360 CALLANDALE LN
DURHAM NC 27703
Parcel
Buildings
Misc Improvements
Land
Deeds
Notes
Sales
Photos
Map
Building Location Address
360 CALLANDALE LN
Building Description
RESFR-RES-FRM-OR-EQ
Card   of  1
Bldg Type RESIDENTIAL
Units 1
Living Area (SQFT) 2680
Number of Stories 2.00
Style CON-CONVENTIONAL
Foundation 03-CONTINOUS-SLAB
Exterior 09-HARD-B/CEMENTBRD
Const Type
Heating 05-PACKAGE-HEAT/COOL
Air Cond
Plumbing Baths (Full):   2
Baths (Half):   1
Extra Fixtures:   0
Total Plumbing Fixtures:   8 
Bedrooms 4
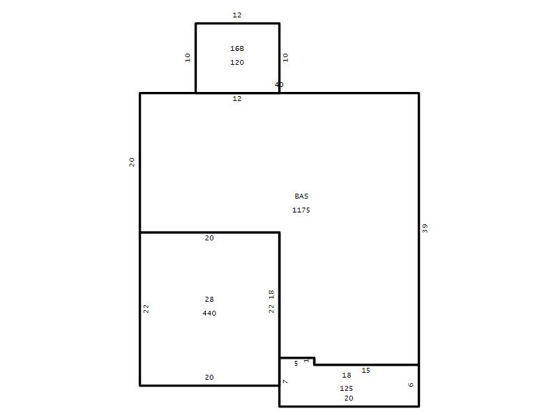
Main Body (SQFT) 1175
Year Built 2013
Additions 5
Effective Year 2013
Remodeled 0
Interior Adj.
Other Features
Building Total & Improvement Details

Grade B-5 115%
Percentage Complete 100
Total Adjusted Replacement Cost New $468,183
Physical Depreciation (% Bad) 0%
Depreciated Value $412,001
Economic Depreciation (% Bad) 0%
Functional Depreciation (% Bad) 0%
Total Depreciated Value $412,001
Market Area Factor 0.90
Building Value $370,801
Misc Improvements Value
Total Improvement Value $370,801

Assessed Land Value $96,900
   
Assessed Total Value $467,701



Addition Summary 
StoryTypeCodeArea
1.00 Concrete Slab 16B 120
1.00 Covered Porch 18 125
1.00 Garage 28 440
1.00 Res Frame 2Nd Flr FR02 1175
1.00 Res Frm 2Nd Flr Over Garg FR02 330
 
Other Improvements 
 


Building Sketch
Photograph
Building Sketch Building Photo
(Click sketch for bigger image)




Copyright © 2022 Durham County, North Carolina.