Building Summary

Data last updated on: 4/2/2026     Ownership current as of: 3/30/2026     Tax Year: 2026
REID 213812

PIN # 0840-93-6198

Location Address Property Description
311 WINDRUSH LN ASHTON HALL/PH:03-04/LTS# 211-318/LT#284 PL:000189-000351
   
Property Owner Owner's Mailing Address
LAVARIN, MARC;LAVARIN, BARBARA
311 WINDRUSH LN
DURHAM NC 27703
Parcel
Buildings
Misc Improvements
Land
Deeds
Notes
Sales
Photos
Map
Building Location Address
311 WINDRUSH LN
Building Description
RESFR-RES-FRM-OR-EQ
Card   of  1
Bldg Type RESIDENTIAL
Units 1
Living Area (SQFT) 3245
Number of Stories 2.00
Style CON-CONVENTIONAL
Foundation 03-CONTINOUS-SLAB
Exterior 09-HARD-B/CEMENTBRD
Const Type
Heating 05-PACKAGE-HEAT/COOL
Air Cond
Plumbing Baths (Full):   2
Baths (Half):   1
Extra Fixtures:   0
Total Plumbing Fixtures:   8 
Bedrooms 4
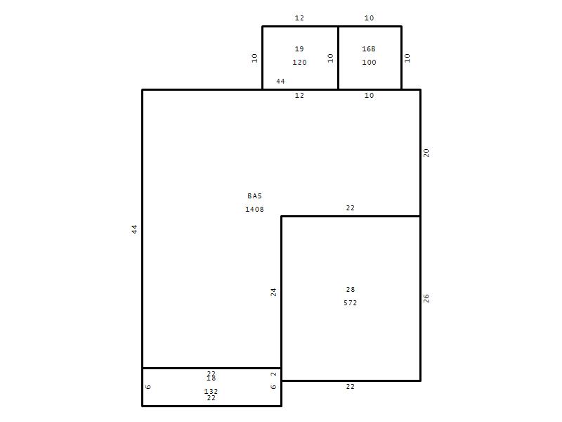
Main Body (SQFT) 1408
Year Built 2013
Additions 6
Effective Year 2013
Remodeled 0
Interior Adj.
Other Features
Building Total & Improvement Details

Grade B-5 115%
Percentage Complete 100
Total Adjusted Replacement Cost New $546,831
Physical Depreciation (% Bad) 0%
Depreciated Value $481,211
Economic Depreciation (% Bad) 0%
Functional Depreciation (% Bad) 0%
Total Depreciated Value $481,211
Market Area Factor 0.90
Building Value $433,090
Misc Improvements Value
Total Improvement Value $433,090

Assessed Land Value $100,300
   
Assessed Total Value $533,390



Addition Summary 
StoryTypeCodeArea
1.00 Concrete Slab 16B 100
1.00 Covered Porch 18 132
1.00 Screen Porch 19 120
1.00 Garage 28 572
1.00 Res Frame 2Nd Flr FR02 1408
1.00 Res Frm 2Nd Flr Over Garg FR02 429
 
Other Improvements 
 


Building Sketch
Photograph
Building Sketch Building Photo
(Click sketch for bigger image)




Copyright © 2022 Durham County, North Carolina.