Building Summary

Data last updated on: 4/2/2026     Ownership current as of: 3/30/2026     Tax Year: 2026
REID 213876

PIN # 0840-96-6038

Location Address Property Description
3011 SEPTEMBER DR HANOVER POINTE/LT#029 PL:000189-000304
   
Property Owner Owner's Mailing Address
TRAN, BICH HANH;PHAM, DINH PHUOC
3011 SEPTEMBER DR
DURHAM NC 27703
Parcel
Buildings
Misc Improvements
Land
Deeds
Notes
Sales
Photos
Map
Building Location Address
3011 SEPTEMBER DR
Building Description
RESFR-RES-FRM-OR-EQ
Card   of  1
Bldg Type RESIDENTIAL
Units 1
Living Area (SQFT) 1986
Number of Stories 2.00
Style CON-CONVENTIONAL
Foundation 03-CONTINOUS-SLAB
Exterior 08-VINYL/ALUMINUM
Const Type
Heating 05-PACKAGE-HEAT/COOL
Air Cond
Plumbing Baths (Full):   2
Baths (Half):   1
Extra Fixtures:   0
Total Plumbing Fixtures:   8 
Bedrooms 3
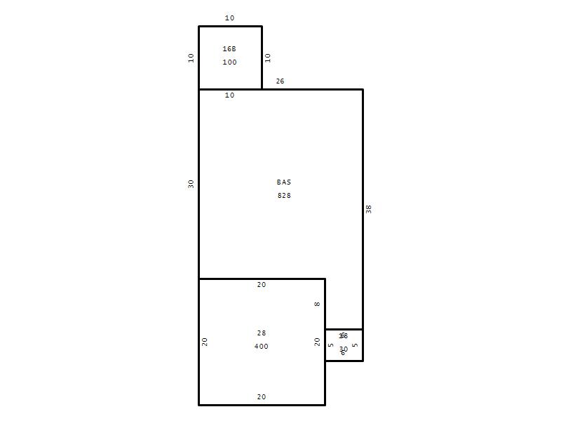
Main Body (SQFT) 828
Year Built 2013
Additions 5
Effective Year 2013
Remodeled 0
Interior Adj.
Other Features
Building Total & Improvement Details

Grade B-10 110%
Percentage Complete 100
Total Adjusted Replacement Cost New $368,643
Physical Depreciation (% Bad) 0%
Depreciated Value $324,406
Economic Depreciation (% Bad) 0%
Functional Depreciation (% Bad) 0%
Total Depreciated Value $324,406
Market Area Factor 1.00
Building Value $324,406
Misc Improvements Value
Total Improvement Value $324,406

Assessed Land Value $77,700
   
Assessed Total Value $402,106



Addition Summary 
StoryTypeCodeArea
1.00 Concrete Slab 16B 100
1.00 Covered Porch 18 30
1.00 Garage 28 400
1.00 Res Frame 2Nd Flr FR02 858
1.00 Res Frm 2Nd Flr Over Garg FR02 300
 
Other Improvements 
 


Building Sketch
Photograph
Building Sketch Building Photo
(Click sketch for bigger image)




Copyright © 2022 Durham County, North Carolina.