Building Summary

Data last updated on: 4/2/2026     Ownership current as of: 3/30/2026     Tax Year: 2026
REID 214344

PIN # 0860-16-0279

Location Address Property Description
303 HOLLY BLOSSOM DR RAVENSTONE 3/PH:01B/LT#10 4 PL:000190-000361
   
Property Owner Owner's Mailing Address
MOCK, COREY D
303 HOLLY BLOSSOM DR
DURHAM NC 27703
Parcel
Buildings
Misc Improvements
Land
Deeds
Notes
Sales
Photos
Map
Building Location Address
303 HOLLY BLOSSOM DR
Building Description
RESFR-RES-FRM-OR-EQ
Card   of  1
Bldg Type RESIDENTIAL
Units 1
Living Area (SQFT) 3056
Number of Stories 2.00
Style CON-CONVENTIONAL
Foundation 03-CONTINOUS-SLAB
Exterior 08-VINYL/ALUMINUM
Const Type
Heating 05-PACKAGE-HEAT/COOL
Air Cond
Plumbing Baths (Full):   3
Baths (Half):   0
Extra Fixtures:   0
Total Plumbing Fixtures:   9 
Bedrooms 4
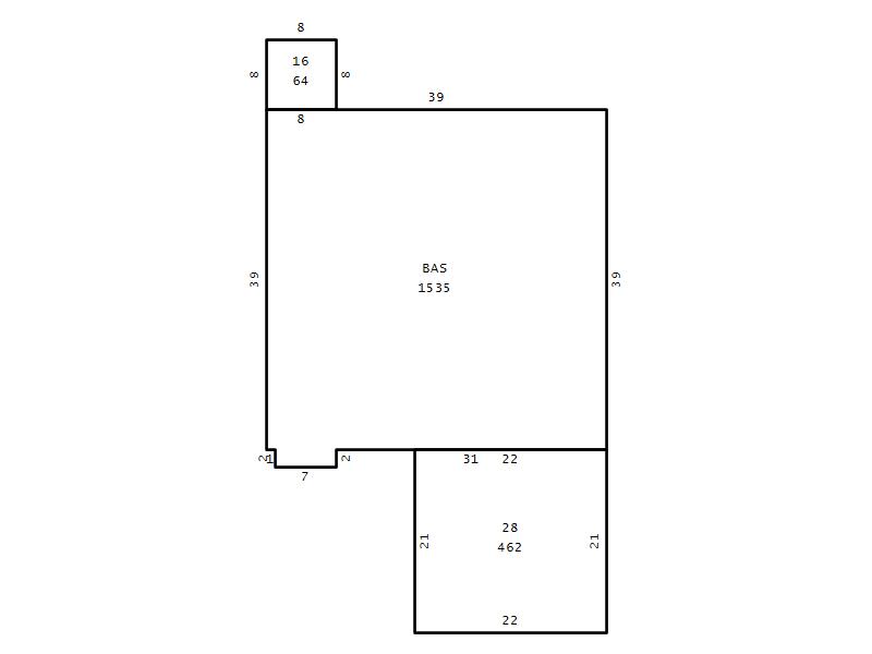
Main Body (SQFT) 1535
Year Built 2013
Additions 3
Effective Year 2013
Remodeled 0
Interior Adj.
Other Features
Building Total & Improvement Details

Grade B-10 110%
Percentage Complete 100
Total Adjusted Replacement Cost New $478,971
Physical Depreciation (% Bad) 0%
Depreciated Value $421,494
Economic Depreciation (% Bad) 0%
Functional Depreciation (% Bad) 0%
Total Depreciated Value $421,494
Market Area Factor 1.00
Building Value $421,494
Misc Improvements Value
Total Improvement Value $421,494

Assessed Land Value $105,875
   
Assessed Total Value $527,369



Addition Summary 
StoryTypeCodeArea
1.00 Frame Deck 16 64
1.00 Garage 28 462
1.00 Res Frame 2Nd Flr FR02 1521
 
Other Improvements 
 


Building Sketch
Photograph
Building Sketch Building Photo
(Click sketch for bigger image)




Copyright © 2022 Durham County, North Carolina.