Building Summary

Data last updated on: 4/2/2026     Ownership current as of: 3/30/2026     Tax Year: 2026
REID 214368

PIN # 0852-54-3543

Location Address Property Description
2123 SCARLET SAGE DR CARDINAL LAKE/PH:08 & 11/ LT#344 PL:000190-000057
   
Property Owner Owner's Mailing Address
HAWKINS, JACOB DANIEL;HAWKINS, MAKENZIE KATE PANLILIO
2123 SCARLET SAGE DR
DURHAM NC 27704
Parcel
Buildings
Misc Improvements
Land
Deeds
Notes
Sales
Photos
Map
Building Location Address
2123 SCARLET SAGE DR
Building Description
RESFR-RES-FRM-OR-EQ
Card   of  1
Bldg Type RESIDENTIAL
Units 1
Living Area (SQFT) 2466
Number of Stories 2.00
Style CON-CONVENTIONAL
Foundation 03-CONTINOUS-SLAB
Exterior 08-VINYL/ALUMINUM
Const Type
Heating 05-PACKAGE-HEAT/COOL
Air Cond
Plumbing Baths (Full):   2
Baths (Half):   1
Extra Fixtures:   0
Total Plumbing Fixtures:   8 
Bedrooms 3
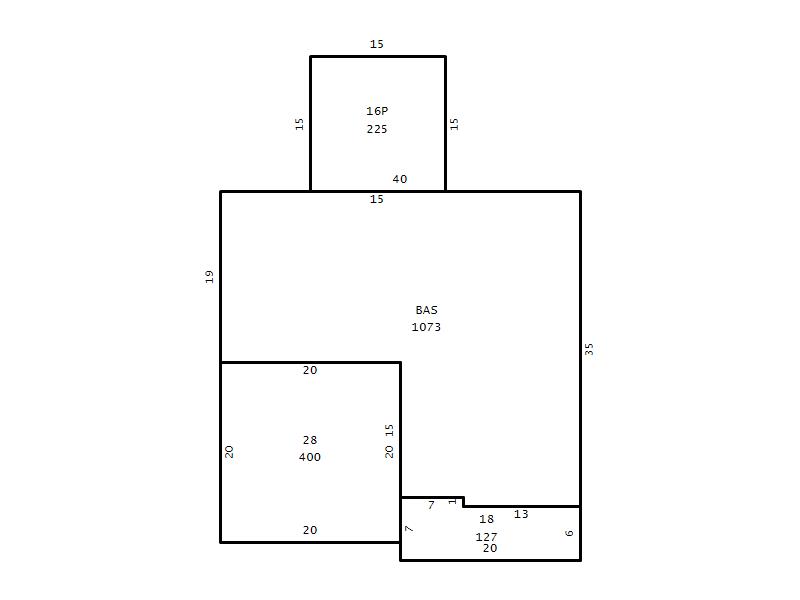
Main Body (SQFT) 1073
Year Built 2013
Additions 5
Effective Year 2013
Remodeled 0
Interior Adj.
Other Features
Building Total & Improvement Details

Grade C+ 110%
Percentage Complete 100
Total Adjusted Replacement Cost New $429,204
Physical Depreciation (% Bad) 0%
Depreciated Value $377,700
Economic Depreciation (% Bad) 0%
Functional Depreciation (% Bad) 0%
Total Depreciated Value $377,700
Market Area Factor 1.00
Building Value $377,700
Misc Improvements Value
Total Improvement Value $377,700

Assessed Land Value $70,625
   
Assessed Total Value $448,325



Addition Summary 
StoryTypeCodeArea
1.00 Patio 16P 225
1.00 Covered Porch 18 127
1.00 Garage 28 400
1.00 Res Frame 2Nd Flr FR02 1073
1.00 Res Frm 2Nd Flr Over Garg FR02 320
 
Other Improvements 
 


Building Sketch
Photograph
Building Sketch Building Photo
(Click sketch for bigger image)




Copyright © 2022 Durham County, North Carolina.