Building Summary

Data last updated on: 4/2/2026     Ownership current as of: 3/30/2026     Tax Year: 2026
REID 214964

PIN # 0860-15-2549

Location Address Property Description
427 COTTONSEED WAY RAVENSTONE 3/PH:01C/LT#04 5 PL:000192-000104
   
Property Owner Owner's Mailing Address
THE FORSYTHE LIVING TRUST
427 COTTONSEED WAY
DURHAM NC 27703
Parcel
Buildings
Misc Improvements
Land
Deeds
Notes
Sales
Photos
Map
Building Location Address
427 COTTONSEED WAY
Building Description
RESFR-RES-FRM-OR-EQ
Card   of  1
Bldg Type RESIDENTIAL
Units 1
Living Area (SQFT) 2851
Number of Stories 2.00
Style CON-CONVENTIONAL
Foundation 03-CONTINOUS-SLAB
Exterior 08-VINYL/ALUMINUM
Const Type
Heating 05-PACKAGE-HEAT/COOL
Air Cond
Plumbing Baths (Full):   2
Baths (Half):   1
Extra Fixtures:   0
Total Plumbing Fixtures:   8 
Bedrooms 4
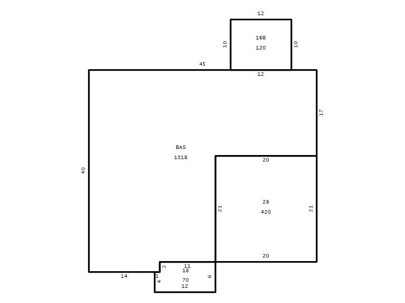
Main Body (SQFT) 1318
Year Built 2014
Additions 5
Effective Year 2014
Remodeled 0
Interior Adj.
Other Features
Building Total & Improvement Details

Grade B-10 110%
Percentage Complete 100
Total Adjusted Replacement Cost New $458,153
Physical Depreciation (% Bad) 0%
Depreciated Value $407,756
Economic Depreciation (% Bad) 0%
Functional Depreciation (% Bad) 0%
Total Depreciated Value $407,756
Market Area Factor 1.00
Building Value $407,756
Misc Improvements Value
Total Improvement Value $407,756

Assessed Land Value $106,750
   
Assessed Total Value $514,506



Addition Summary 
StoryTypeCodeArea
1.00 Concrete Slab 16B 120
1.00 Covered Porch 18 70
1.00 Garage 28 420
1.00 Res Frame 2Nd Flr FR02 1153
1.00 Res Frm 2Nd Flr Over Garg FR02 380
 
Other Improvements 
 


Building Sketch
Photograph
Building Sketch Building Photo
(Click sketch for bigger image)




Copyright © 2022 Durham County, North Carolina.