Building Summary

Data last updated on: 4/2/2026     Ownership current as of: 3/30/2026     Tax Year: 2026
REID 215014

PIN # 0860-06-6185

Location Address Property Description
316 VINTAGE HOLLY DR RAVENSTONE 3/PH:01C/LT#09 5 PL:000192-000104
   
Property Owner Owner's Mailing Address
MADONIA, GASPARE S;MADONIA, NANCY L
316 VINTAGE HOLLY DR
DURHAM NC 27703
Parcel
Buildings
Misc Improvements
Land
Deeds
Notes
Sales
Photos
Map
Building Location Address
316 VINTAGE HOLLY DR
Building Description
RESFR-RES-FRM-OR-EQ
Card   of  1
Bldg Type RESIDENTIAL
Units 1
Living Area (SQFT) 2976
Number of Stories 2.00
Style CON-CONVENTIONAL
Foundation 03-CONTINOUS-SLAB
Exterior 08-VINYL/ALUMINUM
Const Type
Heating 05-PACKAGE-HEAT/COOL
Air Cond
Plumbing Baths (Full):   2
Baths (Half):   1
Extra Fixtures:   0
Total Plumbing Fixtures:   8 
Bedrooms 4
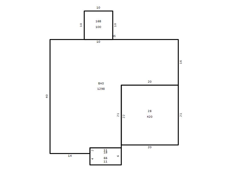
Main Body (SQFT) 1298
Year Built 2014
Additions 5
Effective Year 2014
Remodeled 0
Interior Adj.
Other Features
Building Total & Improvement Details

Grade B-10 110%
Percentage Complete 100
Total Adjusted Replacement Cost New $467,312
Physical Depreciation (% Bad) 0%
Depreciated Value $415,908
Economic Depreciation (% Bad) 0%
Functional Depreciation (% Bad) 0%
Total Depreciated Value $415,908
Market Area Factor 1.00
Building Value $415,908
Misc Improvements Value
Total Improvement Value $415,908

Assessed Land Value $105,875
   
Assessed Total Value $521,783



Addition Summary 
StoryTypeCodeArea
1.00 Concrete Slab 16B 100
1.00 Covered Porch 18 66
1.00 Garage 28 420
1.00 Res Frame 2Nd Flr FR02 1298
1.00 Res Frm 2Nd Flr Over Garg FR02 380
 
Other Improvements 
 


Building Sketch
Photograph
Building Sketch Building Photo
(Click sketch for bigger image)




Copyright © 2022 Durham County, North Carolina.