Building Summary

Data last updated on: 4/2/2026     Ownership current as of: 3/30/2026     Tax Year: 2026
REID 215063

PIN # 0840-96-1070

Location Address Property Description
2007 OCTOBER DR HANOVER POINTE/AREA A/LT# 158 PL:000192-000162
   
Property Owner Owner's Mailing Address
WATSON, JULIA;VARWIG, TYLER
2007 OCTOBER DR
DURHAM NC 27703
Parcel
Buildings
Misc Improvements
Land
Deeds
Notes
Sales
Photos
Map
Building Location Address
2007 OCTOBER DR
Building Description
RESFR-RES-FRM-OR-EQ
Card   of  1
Bldg Type RESIDENTIAL
Units 1
Living Area (SQFT) 2424
Number of Stories 3.00
Style CON-CONVENTIONAL
Foundation 03-CONTINOUS-SLAB
Exterior 08-VINYL/ALUMINUM
Const Type
Heating 05-PACKAGE-HEAT/COOL
Air Cond
Plumbing Baths (Full):   2
Baths (Half):   1
Extra Fixtures:   0
Total Plumbing Fixtures:   8 
Bedrooms 3
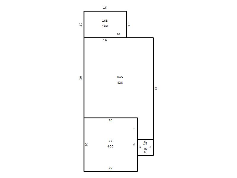
Main Body (SQFT) 828
Year Built 2013
Additions 6
Effective Year 2013
Remodeled 0
Interior Adj.
Other Features
Building Total & Improvement Details

Grade B-10 110%
Percentage Complete 100
Total Adjusted Replacement Cost New $417,349
Physical Depreciation (% Bad) 0%
Depreciated Value $367,267
Economic Depreciation (% Bad) 0%
Functional Depreciation (% Bad) 0%
Total Depreciated Value $367,267
Market Area Factor 1.00
Building Value $367,267
Misc Improvements Value
Total Improvement Value $367,267

Assessed Land Value $78,400
   
Assessed Total Value $445,667



Addition Summary 
StoryTypeCodeArea
1.00 Concrete Slab 16B 160
1.00 Covered Porch 18 36
1.00 Garage 28 400
1.00 Res Frame 2Nd Flr FR02 864
1.00 Res Frm 2Nd Flr Over Garg FR02 300
1.00 Res Frame 3Rd Flr FR03 432
 
Other Improvements 
 


Building Sketch
Photograph
Building Sketch Building Photo
(Click sketch for bigger image)




Copyright © 2022 Durham County, North Carolina.