Building Summary

Data last updated on: 4/3/2026     Ownership current as of: 3/30/2026     Tax Year: 2026
REID 216138

PIN # 0769-44-2175

Location Address Property Description
1216 HORNE CREEK DR DEL WEBB CAROLINA ARBORS/ PH:02A/LT#313 TAN-5 BD B PL:000193-000118
   
Property Owner Owner's Mailing Address
SIZEMORE, CHRISTOPHER;SIZEMORE, JANE
1216 HORNE CREEK DR
DURHAM NC 27703
Parcel
Buildings
Misc Improvements
Land
Deeds
Notes
Sales
Photos
Map
Building Location Address
1216 HORNE CREEK DR
Building Description
RESFR-RES-FRM-OR-EQ
Card   of  1
Bldg Type RESIDENTIAL
Units 1
Living Area (SQFT) 3457
Number of Stories 2.00
Style CAP-CAPE-COD
Foundation 03-CONTINOUS-SLAB
Exterior 09-HARD-B/CEMENTBRD
Const Type
Heating 05-PACKAGE-HEAT/COOL
Air Cond
Plumbing Baths (Full):   3
Baths (Half):   1
Extra Fixtures:   0
Total Plumbing Fixtures:   11 
Bedrooms 3
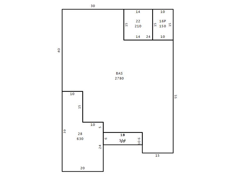
Main Body (SQFT) 2780
Year Built 2014
Additions 5
Effective Year 2014
Remodeled 0
Interior Adj.
Other Features
Building Total & Improvement Details

Grade B+20 140%
Percentage Complete 100
Total Adjusted Replacement Cost New $730,172
Physical Depreciation (% Bad) 0%
Depreciated Value $686,362
Economic Depreciation (% Bad) 0%
Functional Depreciation (% Bad) 0%
Total Depreciated Value $686,362
Market Area Factor 1.00
Building Value $686,362
Misc Improvements Value
Total Improvement Value $686,362

Assessed Land Value $133,380
   
Assessed Total Value $819,742



Addition Summary 
StoryTypeCodeArea
1.00 Patio 16P 150
1.00 Enclosed Porch 22 210
1.00 Garage 28 630
1.00 Covered Porch 18 114
1.00 Res Frame 2Nd Flr FR02 677
 
Other Improvements 
 


Building Sketch
Photograph
Building Sketch Building Photo
(Click sketch for bigger image)




Copyright © 2022 Durham County, North Carolina.