Building Summary

Data last updated on: 4/3/2026     Ownership current as of: 3/30/2026     Tax Year: 2026
REID 217139

PIN # 0769-24-8904

Location Address Property Description
2212 BLOOMSBURY MANOR DR DEL WEBB CAROLINA ARBORS/ PH:02B/LT#699 PL:000193-000345
   
Property Owner Owner's Mailing Address
WONG, BETTY M;WONG, ALAN K
2212 BLOOMSBURY MANOR DR
DURHAM NC 27703
Parcel
Buildings
Misc Improvements
Land
Deeds
Notes
Sales
Photos
Map
Building Location Address
2212 BLOOMSBURY MANOR DR
Building Description
RESFR-RES-FRM-OR-EQ
Card   of  1
Bldg Type RESIDENTIAL
Units 1
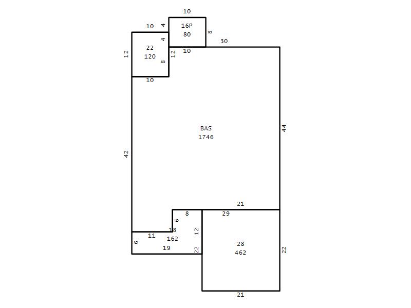
Living Area (SQFT) 1746
Number of Stories 1.00
Style CAP-CAPE-COD
Foundation 06-BASEMENT
Exterior 09-HARD-B/CEMENTBRD
Const Type
Heating 05-PACKAGE-HEAT/COOL
Air Cond
Plumbing Baths (Full):   2
Baths (Half):   0
Extra Fixtures:   0
Total Plumbing Fixtures:   6 
Bedrooms 2
Main Body (SQFT) 1746
Year Built 2019
Additions 5
Effective Year 2019
Remodeled 0
Interior Adj.
Other Features
Building Total & Improvement Details

Grade B+20 140%
Percentage Complete 100
Total Adjusted Replacement Cost New $539,282
Physical Depreciation (% Bad) 0%
Depreciated Value $533,889
Economic Depreciation (% Bad) 0%
Functional Depreciation (% Bad) 0%
Total Depreciated Value $533,889
Market Area Factor 1.00
Building Value $533,889
Misc Improvements Value
Total Improvement Value $533,889

Assessed Land Value $131,100
   
Assessed Total Value $664,989



Addition Summary 
StoryTypeCodeArea
1.00 Patio 16P 80
1.00 Covered Porch 18 162
1.00 Enclosed Porch 22 120
1.00 Garage 28 462
1.00 Unfinished Basement 10 1746
 
Other Improvements 
 


Building Sketch
Photograph
Building Sketch Photo is unavailable for this parcel.
(Click sketch for bigger image)




Copyright © 2022 Durham County, North Carolina.